Ziel der Thesis ist es, die Alster wieder sicht- und erfahrbar und das Element Wasser aufs Neue erlebbar zu machen, die vielen Möglichkeiten der Wassernähe auszukosten und somit die Lebensqualität der Stadt zu verbessern. Es wird ein innovatives Konzept zur Interaktion von Natur, Wasser, Freiraum und urbaner Architektur geschaffen. Konzept alsterblick wird zum zentralen freizugänglichen Anlaufpunkt an der Außenalster.
Die Hamburger und die Touristen der Hansestadt sollen die Gelegenheit bekommen, die Alster mehr in ihr alltägliches Bewusstsein zu rücken und das Verweilen am und im Wasser wieder als selbstverständlich zu sehen. alsterblick korrespondiert mit der Geologie und Topologie des Ortes.
Dabei entsteht ein natürliches Zusammenspiel von Architektur mit der vorhandenen Umgebung und neue Raumerlebnisse werden auf unterschiedlichen Höhen geschaffen.
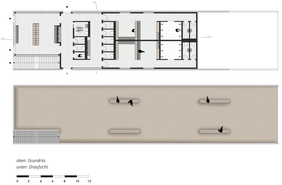
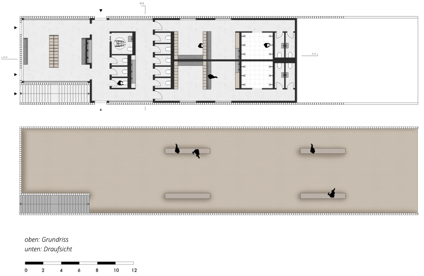
Der Standort schafft einen öffentlichen Raum, der eine Kombination aus urbanem Leben, naturverbundenen, sportlichen und kulturellen Aktivitäten sowie soziale Begegnung und Kommunikation ermöglicht. Er umfasst die Erweiterung
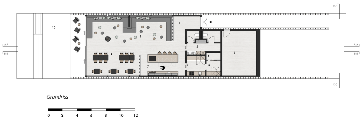
der vorhandenen Uferkante, den Ausbau von einem multifunktionalen Holzsteg und die Verbesserung der Fuß und Radwege. Sowohl der Steg, als auch die Uferkante stellen genügend Sitz-, und Liegeflächen zur Verfügung. Großzügige Sitzstufenbereiche und Aussichtsplattformen, mit einzigartigen weiten Ausblicken auf die Außenalster und die damit verbundenen Sehenswürdigkeiten, sind Highlight des neuen öffentlichen Treffpunkts. Ein Café mit Panoramablick, eine Unterwasser-Sauna, ein Kiosk und ein attraktiver Badesteg ergänzen das Konzept. Der Blick fällt auf die gegenüberliegende Uferseite im Westen. Zu sehen sind der Hamburger Fernsehturm, die St. Michaelis Kirche und das Hamburger Rathaus.
Hier öffnet sich die Stadt zum Alstersee, es werden Events veranstaltet, es wird gebadet, es wird sich zu einem gemeinsamen Spaziergang getroffen oder man sitzt auf einer Bank und beobachtet das Kommen und Gehen der zahlreichen Tagestouristen. Der Ort verfügt über eine großzügige unberührte Wiese, einen gepflasterten Weg, der bis an die Uferkante verläuft und einzelne Sitzbänke.
Trotz der hervorragenden Wasserlage gibt es wenig frei zugängliche Plätze in Hamburg an der Alster mit direktem Wasserkontakt. Aufgrund der aufgezeigten Gegebenheiten ist das Potential der Alsterwiese Schwanenwik hoch und daher Grund für die Verortung des Entwurfs.
alsterblick

Project Infos
Year: 2019
Studycourse:
Interior Design
Supervisor:
Hack, Achim, Prof.Hantke, Oliver, Prof.
Participants:
Nora-Kristine Krüger
Project type:
Exam ProjectConcept
Back to project overwiev














