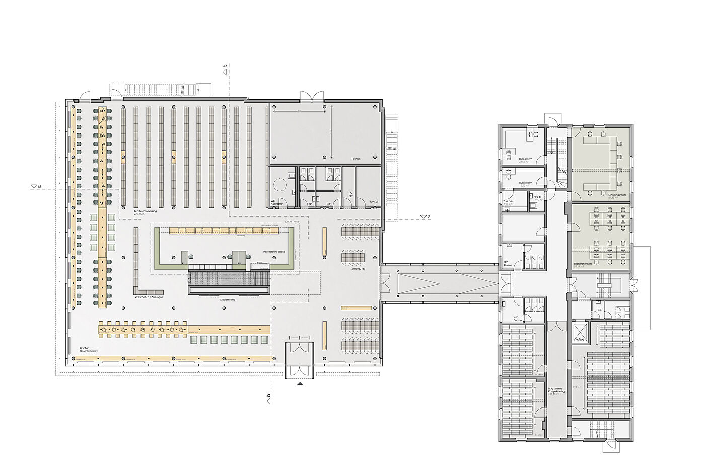
Die Bibliothek bietet als neues Herzstück des Hochschulcampus einen Ort, der konzentriertes Arbeiten und kommunikativen Aufenthalt vereint.
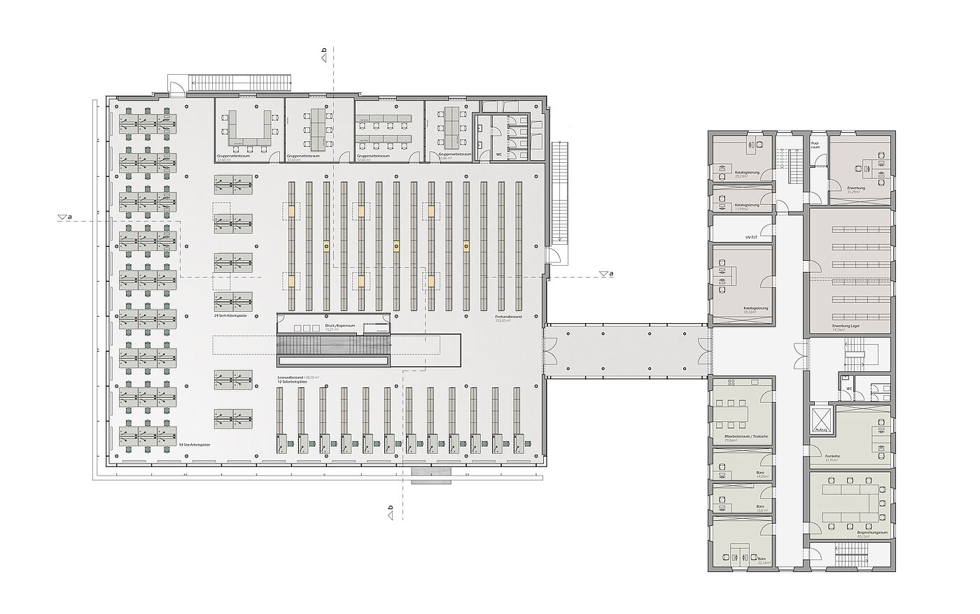
Die Innenraumzonierung folgt dem Kontrast der Fassadenausbildung: Arbeitsplätze befinden sich sowohl im Erd- als auch im Obergeschoss aussschließlich entlang der lichtdurchfluteten Glasfassade. Die Bücherbestände sind in den lichtärmeren Innenraumbereichen angeordnet.
Die Lesebar im Erdgeschoss ermöglicht mit einer Aneinanderreihung unterschiedlicher Tischhöhen abwechslungsreiche Steh- und Sitzpositionen zum Arbeiten und lädt gleichzeitig zum kommunikativen Austausch ein.
Campusherz

Project Infos
Year: 2019
Studycourse:
Interior Design
Supervisor:
Hantke, Oliver, Prof.Joedicke, Joachim Andreas, Prof.
Participants:
Nele Clausen
Project type:
Concept
Back to project overwiev




