Die Bibliothek als Campusherz – ein Ort um zusammenzukommen und zu lernen. Das Herzstück jeder Bibliothek ist das Buch, vielmehr das Wissen, welches in den gedruckten und elektronischen Exemplaren steckt. So ist das räumliche Konzept des Entwurfes vom Flattersatz abgeleitet.
"Als Flattersatz, anaxialer Satz oder asymmetrischer Satz wird in der Typografie ein Text bezeichnet, dessen Zeilen entweder nach links, rechts oder links und rechts ungleichmäßig auslaufen, wobei die Wortzwischenräume stets gleichbleibend sind."
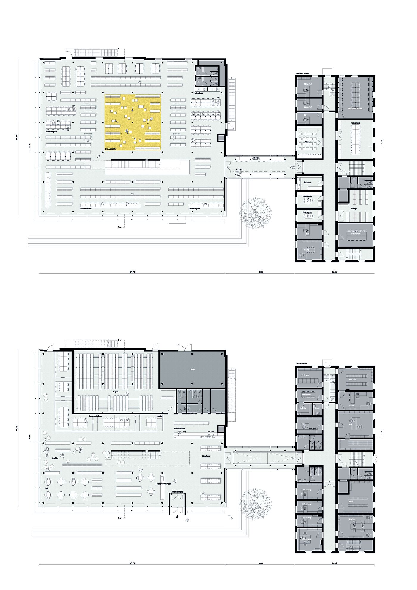
Um die Bibliothek als Ort des Austausches, Lernens und der Kommunikation zu gestalten, werden verschiedene Bereiche nebötigt. Die Bücherregale sind dem Flattersatz nachempfunden angeordnet. So entstehen Bereiche zwischen den Regalen, die eine Abschirmung vom Rest des Raums bilden. In diesen Bereichen sind die Einzelarbeitsplätze den Fenstern entlang angeordnet. Neben dem klassischen Arbeitstisch mit Stuhl bietet das neue Campusherz Möglichkeiten für freies Entfalten und Lernen. Der Fokus wird auf die verschiedenen Aspekte des Lernens gelegt, diese beinhalten sowohl Arbeiten als auch Pausen, Ruhe und Kommunikation.
Im Haus 23, dem an den Neubau angrenzenden Altbau des Bibliothekkomplexes, befinden sich Sonderräume, um den Besuchern ein noch weiteres Spektrum an Arbeits- und Lernfläche zu bieten. Im Erdgeschoss befindet sich ein Café-Bereich mit Kaffeemaschine als Platz für Kommunikation und ungezwungenes Lernen. Ergänzend dazu gibt es noch einen Zeitschriften- und Zeitungsbereich.






