Vegetarisch, vegan, kosher, paleo, frutarisch – es gibt eine Vielzahl von Ernährungsformen und Ernährungstypen von alltäglich und „gesund“ bis hin zu absurd und nachweislich Gesundheitsschädlich. Wenn es um Gesundheit geht werden viele von uns zum Experten und Fanatiker. Jeder hat seine Vorlieben und Argumente für eine spezielle Ernährungsweise und vertritt und verteidigt diese bei jeder Zusammenkunft bei der Essen im Spiel ist. Vegetarier und Veganer gibt es schon seit Jahrhunderten - meist aus religiösen Gründen. Den Anstieg der Vertreter der Vegetarier und Veganer in unserer Gesellschaft hat allerdings ein menschengemachtes Problem zur Grundlage: Massentierhaltung durch übermässigen Fleischgenuss. Viele verzichten durch diese Umstände vollständig auf Fleisch, denn die Folgen der Massentierhaltung für den Menschen sind nicht von der Hand zu weisen. Sehr hoher Wasserverbrauch, Antibiotikaresistenzen bei Tieren und Menschen, durch Gülle schwer belastete Nährböden und Beeinträchtigung des Grundwassers, Umweltbelastung durch Treibhausgase - die Liste ist lang. Die „Fleischfabrik“ Deutschland hat die Produktion in 20 Jahren mehr als verdoppelt, Fleisch wird immer billiger und immer mehr Fleisch bzw. Fleischprodukte werden verkauft - zu Lasten unseres Ökosystems. Fleisch ist in Verruf geraten aber die wenigsten wollen darauf verzichten. Es gehört für den Großteil der Bevölkerung zu einer ausgewogenen Ernährung und mit einem maßvollen und bewußten Fleischkonsum könnte die Gesellschaft hier nachhaltig zu einer besseren Umwelt für Mensch und Tier beitragen.
Im Rahmen dieses Gedankens haben die Bachelor-Studierenden des 3. Semester drei Metzgereien und einen Feinkostladen entworfen. Mal steht die Transparenz der Fleischverarbeitung im Vordergrung, an andere Stelle das gemeinsame verarbeiten der Produkte im Rahmen einer Kochschule oder die Inszenierung der angebotenen Lebensmittel.
Jeder Entwurf wird den feilgebotenen Waren gerecht und zeigt auf, auf wie viele unterschiedliche Arten mit der visuellen Vermittlung von Lebensmitteln umgegangen werden kann, abseits von Werbeplakaten für Billigprodukte.
Durchdrehen - Anna Schindler
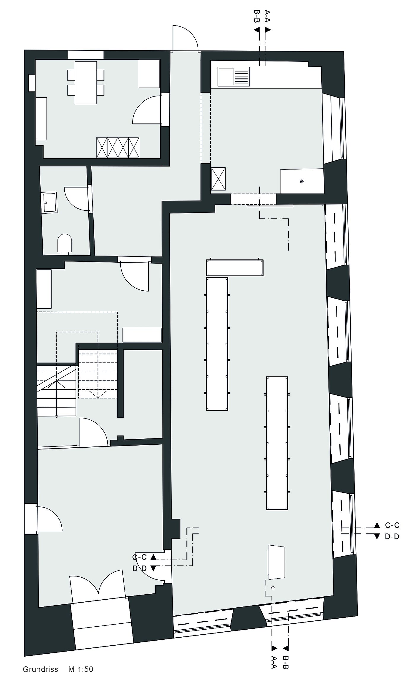
Bei der Metzgerei „Durchdrehen“ steht das Handwerk im Vordergrund. Der Kunde bekommt durch den offen gestalteten Verkaufsraum das Gefühl, Teil des Herstellungsprozesses zu sein. Die Kundschaft kann, mithilfe von neuen Maschinen im Retro-Stil von Aufschnitt bis zum frischen Mett alles erhalten.
Der Personalbereich ist durch die Stellung der Tische von dem der Kunden getrennt.
Den Hygienevorschriften entsprechend ist der Boden mit weißen Fliesen belegt, welche an der Wand hoch- gezogen sind. Der obere Bereich der Wände ist mit Fenix beschichtet. Eiche und Edelstahl sind die Primären Ma- terialien der Arbeitsstationen.
Rotes Gold - Laura Stolpmann
Hier wird der Einkauf zu einem besonderen Erlebnis. Beschaffungen mit Reizüberflutung, Unentschlossenheit durch Massenangebot und minderwertige Ware gehören ab jetzt der Geschichte an.
Der Name ROTES GOLD ist Programm - das minimierte Fleischangebot genießt die höchsten Qualitätsstandards und wird durch die besondere Präsentation fokussiert in Szene gesetzt. Dies geschieht durch den geringen Tageslichteinfall und der daraus resultierenden Dunkelheit. Alle Filet- und Steaks sind in einer gekühlten Vitrine platziert, welche die Möglichkeit bietet, jedes Stück Fleisch durch Leuchten gekonnt in den Mittelpunkt zu setzen.
Dunkle Farben sowie Materialien unterstützen das Konzept der fokossierten Inszenierung.
Specktakel - Nelly Dommel
Im Mittelpunkt des Specktakels steht handwerkliche Herstellung, die Herkunft des Fleisches, die Transparenz für den Kunden und der Geschmack. Der unbewusste Fleischkonsum muss reduziert werden. Aus diesem Grund wird der gesamte Weg von Zelegung, über Wurstherstellung bis hin zum Braten eines Steaks in den Vordergrund gestellt und das in höchster Qualität. Weg vom Massenkonsum, hin zum bewussten Genuss, durch enge Kommunikation zwischen Metzger und Kunde. Anregungen für das perfekte Gericht gibt es hier durch eine Küche auf Augenhöhe. Über ein wechselndes Angebot kann sich Inspiraton und ein außergewöhnliches Geschmackserlebnis geholt werden.
Durch verglaste Flächen, die von Stahlrahmen gehalten werden, ist die gewünschte Transparenz zu den Verarbeitungsbereichen möglich. Die Arbeitsflächen und deren Unterkonstruktionen sind ebenfalls aus Stahl. In der Verarbeitungszone ist der Boden mit weißen Fliesen belegt. Bereiche, die für Kunden zugänglich sind, sind mit Nussbaum-Parkett belegt. Die Wände sind im gesamten Kunden- und Verarbeitungsbereich mit schwarzen Fliesen versehen. Der Tisch und die Hocker im Kundenbereich besitzen eine Nussbaumoberfläche und eine Unterkonstruktion aus Stahl.
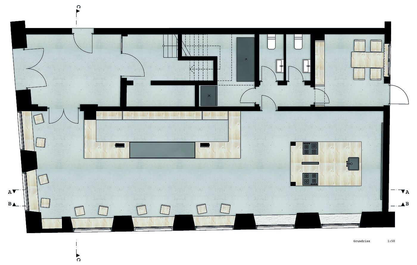
Green Elephant - Stephanie Gehlken
Vegane Feinkost im Sinne der Umwelt, der Gesundheit aber besonders im Sinne des Geschmacks. Im Green Elephant wird jeder fündig. Von süßen Verlockungen, über herzhafte Aufstriche bis hin zum saftigen Obst und knackigem Gemüse.
Und all das in organischer Bio-Qualität.
Da das Auge bekanntlich mitisst, lässt die moderne als auch stilvolle Einrichtung mit ihren gedeckten Tönen der farbenfrohen Feinkost ihren Vorrang. Zu finden sind die Materialien Weißtanne, dunkler Stahl, weiße Fliesen sowie Beton auf dem Fußboden. Zudem wurde das bereits vorhandene Mauerwerk im Innenraum gekalkt, um ein einheitliches und klares Bild zu erhalten.
Unterstützt wird diese Stimmung durch eine angenehme Lichtverteilung im gesamten Verkaufsbereich. Hierdurch wird die Auslage in der Frischetheke sowie in den Regalen perfekt in Szene gesetzt.
Ein aktuelles Angebot der Speisen sowie Besonderheiten findet man unmittelbar hinter der Theke auf einer großen Tafel. Damit die Kunden Unterstützung beim Einkauf haben, wartet dort geschultes Personal, die den Kunden optimal beraten können.
Wenn der Verkauf am Abend beendet wird, beginnt auf der selben Fläche ein Kochkurs für bis zu sechs Personen. Hierfür befindet sich im hinteren Teil des Geschäfts eine Kochinsel mit zwei Herden sowie Backöfen, einem Waschbecken und ausreichend Platz zum Arbeiten und Verstauen. Damit nach dem Kurs gemeinsam gegessen werden kann, hängt an der Wand hinter der Kochinsel ein Tisch, der bei Bedarf abgehangen und zusammen gesteckt wird.
Die Stühle, die tagsüber an den eingebauten Tischen der Fensternischen stehen, werden dann dazu platziert und es kann gegessen werden.














