Bachelor-Thesis
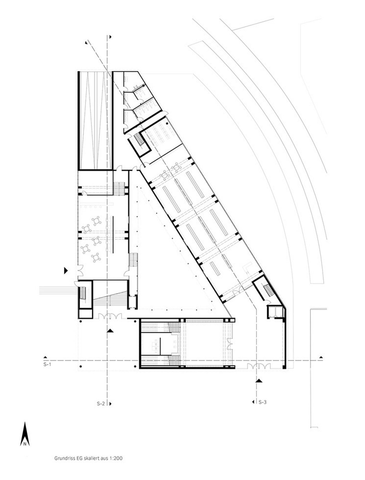
Der Neue Markt, einer der bedeutendsten Plätze der Hansestadt Rostock, ist derzeit durch die fehlende nördliche Raumkante des Platzes räumlich unbestimmt.
Mit dem vorliegenden Entwurf einer Raumskulptur für ein „Haus des Buches“ wird der Neue Markt seiner Bedeutung im Stadtgefüge wieder gerecht. Durch das Konzept eines vertikalen Raumkontinuums mit gefalteten Ebenen und verschobenen Plattformen für die Ansiedlung von Verlagshäusern, literaturbezogenen öffentlichen und privaten Nutzungen sowie der Stadtbibliothek in Verbindung mit Räumen für Veranstaltungen und Ausstellungsräume zu einem gefalteten Raumgefüge mit vielfältigen Blickbeziehungen wird der Ort zu einem Standort mit hoher öffentlicher Wahrnehmbarkeit transformiert.





