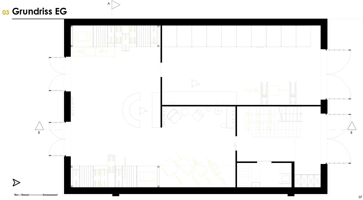
For the young Rostock based transport bike shop “transportrad-mv”, a shop concept was to be developed for the Schwerin location at the train station. The former depot in Schwerin will be converted into an urban center in the long term. In addition to cultural institutions, a publishing house and gastronomy, the location close to the center now also offers the Rostock company “Transportrad-mv” a location to offer cargo bikes in Schwerin. In addition to the classic sale of cargo bikes, the integration of a cargo bike rental company and office space that should be available as co-working for the shop operator and for the ADFC were part of this design.
Cargobike-shop: "transportrad-mv"

Project Infos
Year: 2021
Studycourse:
Interior Design
Supervisor:
Hantke, Oliver, Prof.
Participants:
Emma Karamnow
Project type:
Concept
Back to project overwiev


![[Translate to English:]](/storages/hs-wismar/_processed_/4/8/csm_TransportradMV_Grundriss-0G_5bbc52efbc.jpg)
![[Translate to English:]](/storages/hs-wismar/_processed_/f/7/csm_TransportradMV_Verkaufsraum_3c25746895.jpg)
![[Translate to English:]](/storages/hs-wismar/_processed_/4/3/csm_TransportradMV_Verkaufsraum_02_4b07337d95.jpg)
![[Translate to English:]](/storages/hs-wismar/_processed_/9/e/csm_TransportradMV_grossraumbuero_bf5a6e6b9a.jpg)
![[Translate to English:]](/storages/hs-wismar/_processed_/e/9/csm_TransportradMV_Perspective_Kueche_4ea1d46d5c.jpg)
![[Translate to English:]](/storages/hs-wismar/_processed_/7/4/csm_TransportradMV_Werkstattmoebel_554227810c.jpg)
![[Translate to English:]](/storages/hs-wismar/_processed_/4/8/csm_TransportradMV_Gestaltung_Aussenraum_e9f0832b6a.jpg)