Re-fabricated Community | Building Transformation

Project: Re-fabricated Community | Building TransformationModell by Metthew Keller

Project Infos

Year: 2026

Studycourse:
Architecture

Supervisor:
Falbe, Dina, Dr.Ludwig, Matthias, Prof.

Participants:
Matthew Keller

Project type:
Concept

The purpose of this project is to transform an unused GDR school into a seniors community in a way that retains the character and intent of the original design while still ensuring a relevant design to the needs of the local community, so that residents and the building can both be given a new opportunity for life. By transforming a vacant unused space and preserving the most important heritage values while adapting to serve the present needs of the current aging community, this project ensures that the history, built value, and community identity can be retained for years to come.

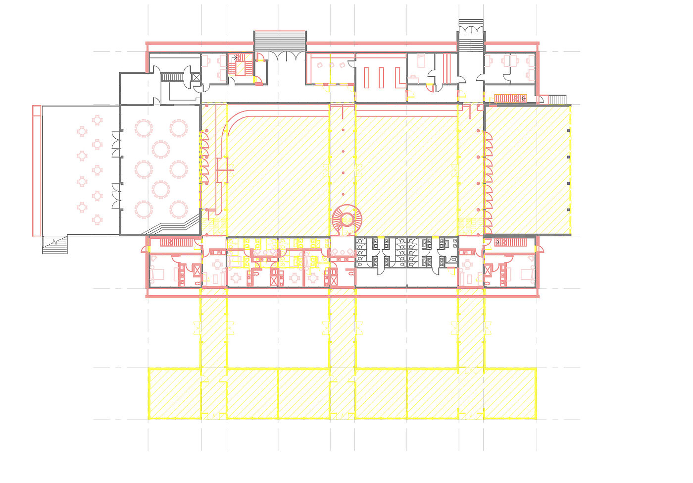
This school building from the 1960s was originally designed by architect Helmut Trauzettel, who taught architecture at TU Dresden and had an international reputation as an expert on school architecture. The former school in Thale one of the last remaining buildings of Trauzettels type school concept, which was originally built about 30 times in the area around the citys Halle and Magdeburg. As the first School Type build entirely from prefabricated concrete elements in the GDR, this structure provided enough proof of concept to secure the future construction of such schools en-masse. 

The building is important to preserve because it brings insight into the early stages of prefabricated concrete shell construction in the GDR and highlights a unique method of construction that minimizes use of resources while maximizing efficiency in an unusual concrete form. The original inventor of the so-called hp-shells, Herbert Müller, was only able to implement his design during the experimental construction of this school project due to the governing authorities skepticism on its practicality. In this sense, it is one of the earliest prefabricated shell-structures in Germany that is truly connected to its original designer.

Adjusting the scale and area of the building by de-assembling one section enables a space that is more suited to the current size of the community, and provides existing prefabricated elements that can be reused in the new, space efficient building. This improves the building performance, using passive strategies such as buffering air space and solar gain through a new canopy system, while still retaining the aesthetic of the precast building. By re-fabricating the existing precast elements from the demolished section, the new facade retains the existing character and design intent, but allows for increased thermal performance to meet current needs.

Community gathering space is created in the courtyard through the introduction of a suspended cloth shell separated from the existing system through a glazed drainage system, gently directing reverence towards the existing shell system geometry while embracing a new design language.

Perspective

Back to project overwiev