San Francisco Urban Waterfront

Project Infos

Year: 2025

Studycourse:
Architecture

Supervisor:
Niemann, Beate, Prof. Dr.-Ing.

Participants:
Studierende der Architektur

Project type:
Concept

Cities are facing a wide variety of immense challenges these days. Resource Scarcity and the consequences of global climate change, such as rising sea levels, are pressuring current cities to transform. The city of San Francisco is no exception to that, especially in the context of the increasing importance of location factors and the image of cities. Special waterfront situations are being used to reposition themselves within this urban competition. Therefore, it is important to use waterfront potentials in a targeted manner and to integrate them into urban development concepts to create places that contribute to a specific identity and at the same time meet the challenges of climate change.

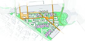
The following urban design projects address the problems mentioned above and display innovative approaches as well as transformation strategies for a location are the Piers from Fisherman’s Wharf all the way down to the Piers of the southern waterfront. The Design projects themselves are located in the southern area and include Pier 80 to 96 as well as the Heron’s Head Park. The location is well connected to the infrastructure of the city and allows the site to be transformed into an attractive urban space.

The projects considered both higher-level contexts and the analysis of the site. In addition to the analysis and presentations of historical and contemporary case studies - significant in terms of urban planning and architecture - discussions were held to classify and evaluate what has been seen. The aim of the urban and landscape design with an architectural design project of choice was to open up development potentials, to link fragmented areas with each other, to activate area potentials as well as to develop suitable public space and building typologies in dealing with the special features of the location next to the water.

Joana Petersen
Tabea Brett | Viktoria Nellißen
Damian Lürbke
Damian Lürbke
Damian Lürbke
Damian Lürbke
Alicia Yepez | Patrick Radny

Back to project overwiev