Alters-WG – Es lohnt sich! Die Überalterung der Gesellschaft stellt das Wohnen vor neue Herausforderungen. Während junge Familien bezahlbaren Wohnraum suchen, fehlen barrierefreie Wohnungen für ältere Menschen – nur 2 % des Bestands sind aktuell wirklich altersgerecht. Gleichzeitig wächst das Risiko der Altersarmut, wodurch viele Senior:innen sich keine hohen Mieten oder Pflegeheime leisten können.
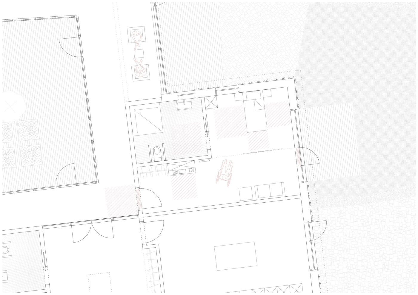
Hier setzt das Konzept der Alters-WG an: Gemeinsam statt einsam wohnen, Kosten teilen und sich gegenseitig unterstützen. Doch damit sich dieses Modell langfristig lohnt, braucht es attraktive, nachhaltige Architektur und Finanzierungskonzepte. Flexibel nutzbare Räume, barrierefreie Zugänge und energieeffiziente Bauweise sorgen für Lebensqualität und geringe Nebenkosten. Gemeinschaftsflächen fördern das Miteinander.
Ein vielversprechender Ansatz zur Finanzierung und langfristigen Sicherung solcher Wohnprojekte ist das Mietshäuser Syndikat. Dieses Modell ermöglicht es, Wohnraum gemeinschaftlich zu erwerben und dauerhaft dem Markt zu entziehen. Das Haus gehört nicht Einzelpersonen, sondern einer gemeinnützigen GmbH, die von den Bewohner:innen selbst verwaltet wird. Sie organisieren sich gemeinschaftlich und entscheiden eigenständig über Mieten, Umbauten und Nutzungskonzepte. Durch solidarische Unterstützung innerhalb des Netzwerks wird sichergestellt, dass die Immobilie dauerhaft bezahlbar bleibt.
Altersgerechte Wohngemeinschaften sind nicht nur eine Antwort auf die Wohnungsnot, sondern auch ein wichtiger Schritt hin zu nachhaltigem, sozialem Wohnen – ein Gewinn für alle Generationen.









