Der Baukörper, in seiner Form einzigartig, demonstriert die Bedeutung des Gebäudes für die Stadt und die gesamte Region. Das Gebäude soll eine Strahlkraft entwickeln und als Wahrzeichen fungieren. Trotz der exponierten Lage und der gewünschten Einzigartigkeit wurde Bezug auf die Umgebung genommen. Die DDR-Plattenbau Giebelhäuser als Blockrandbebauung und der neue Landschaftsarchitekturentwurf der Promenade waren bestimmende Motive der Formgebung des Entwurfs.
Die Kubatur stellt eine Ergänzung zu den künstlichen Dünen am Stadthafen dar. Dabei wurde die Form der Dünen adaptiert. Besonders die Aufsicht des Gebäudes wird durch diese Formgebung stark geprägt. Um das Gebäude in diese Struktur zu integrieren wurde ein öffentlicher Freibereich auf dem Gebäude entwickelt, welcher über Rampen und Treppen erreicht werden kann. Zudem war eine Einfügung in die Stadtsilhouette ein priorisiertes Ziel. Das Gebäude fügt sich optisch in die Struktur der Blockrandbebauung ein.
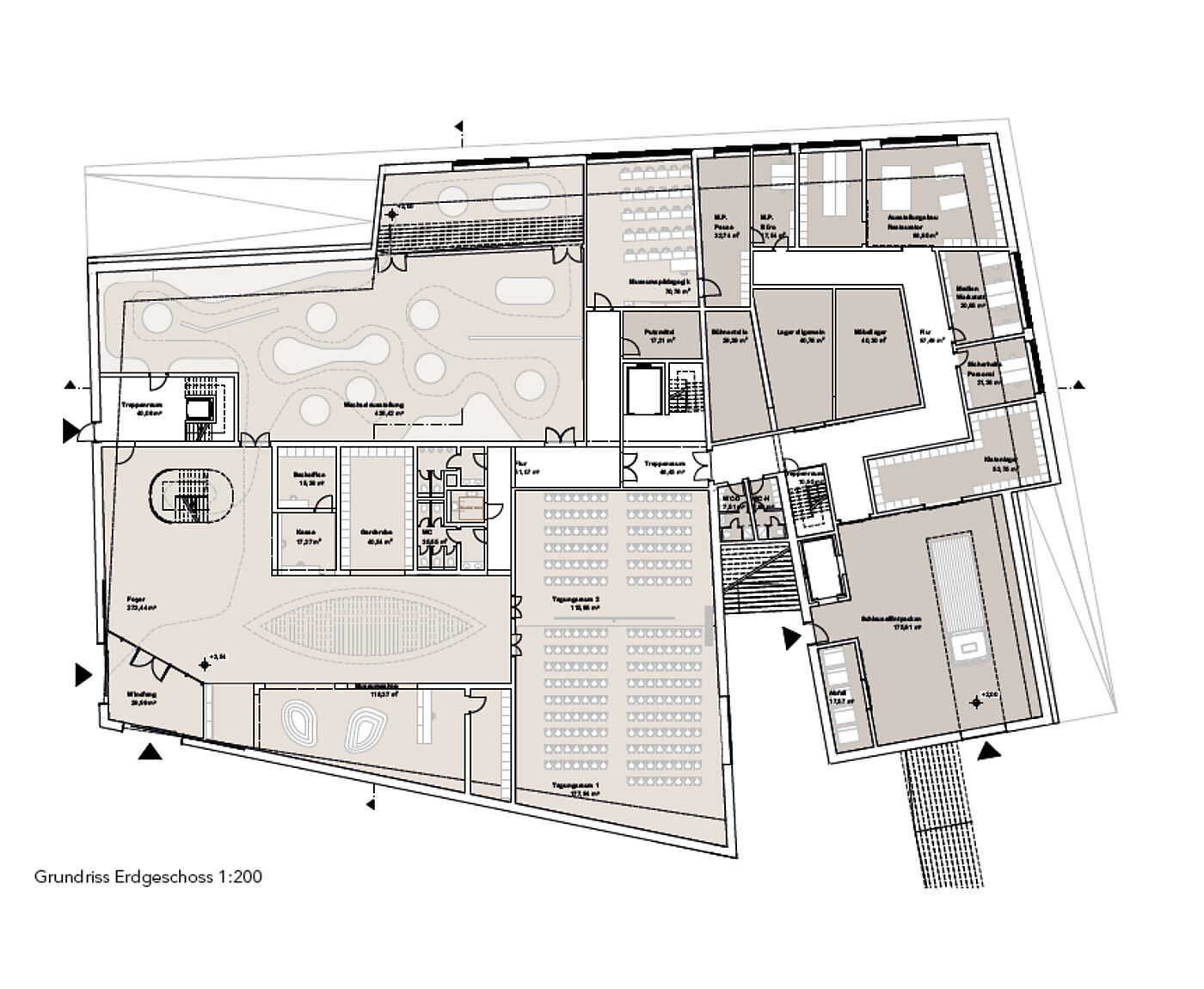
FUNKTION | Durch die optische Trennung des Gebäudes konnten zwei Bereiche des Museums geschaffen werden. Somit kann eine optimale Funktion der internen Bereiche und Abläufe garantiert werden. Der kleinere östliche Baukörper dient der Anlieferung, Verwaltung und Instandhaltung der Exponate. Im Erdgeschoss ist zudem eine Anlieferung über eine große Wareneingangshalle möglich, welche mit den Ausstellungsräumen über Lastenaufzüge im Erdgeschoss verbunden ist. Das erste Obergeschoss bietet Platz für die Verwaltung des Museums, sowie die Technikflächen. Lediglich das zweite Obergeschoss, welches auch über Rampen bzw. Treppen erreichbar ist, ist wieder öffentlich zugänglich. Dort befindet sich die Gastronomie inkl. Außenbereich mit Blick auf die Warnow, welche auch unabhängig vom Museum geöffnet und erschlossen werden kann. Die Anlieferung der Gastronomie erfolgt über einen internen Lastenaufzug aus der Wareneingangshalle.
Der westliche Gebäudeteil ist der öffentliche Bereich des Museums. Erschlossen wird er über die südwestliche Gebäudeecke, welche zur neuen Plaza ausgerichtet ist. Von dort aus gelangt man ins Foyer, von dem man die Wechselausstellung, Tagungsräume, den Museumsshop sowie die museumspädagogischen Bereiche erreichen kann. Über eine Treppe im Luftraum des Foyers gelangt man in die Obergeschosse, in denen die Dauerausstellung gestaltet wurde. Schließlich kann man im Foyer auch eines der wichtigsten Exponate des Museums betrachten: Das Schiff von Wismar. Dieses wurde in einem Luftraum exponiert, sodass man es von unten, von der Seite und von oben betrachten kann. Als Eye-Catcher wirkt es außerdem, wenn Tagungen im Museum stattfinden und die Gäste unter dem Schiff entlanggehen, um in die Veranstaltungsräume zu gelangen. Ein weiteres Element der Ausstellungsplanung waren die Ausblick-Räume, welche den Besuchern den Blick über die Hansestadt ermöglichen und dabei die lichtempfindlichen Exponate schützen.







