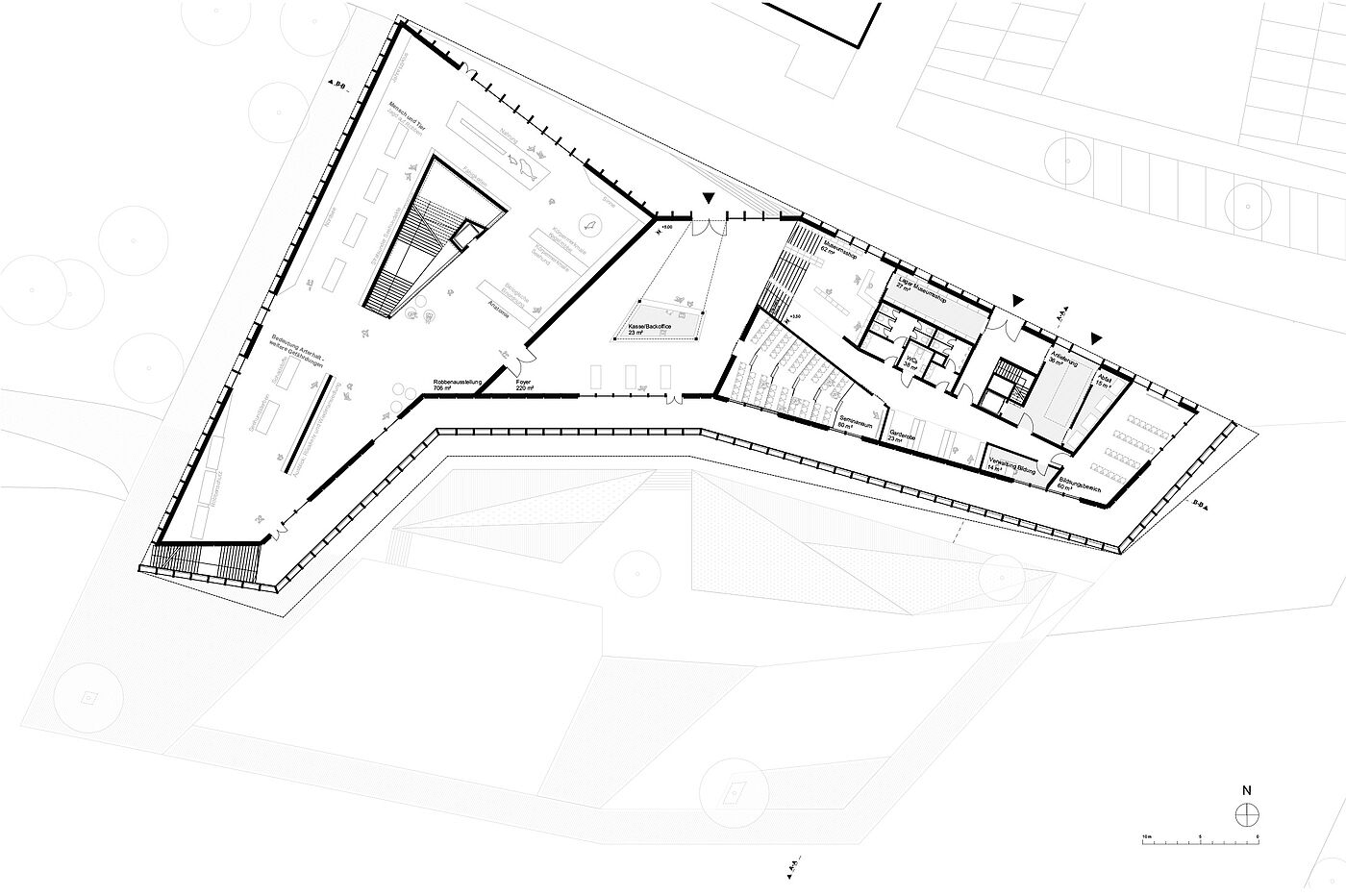
Seehundstationen könnten eine Alternative zu den bisherigen Zookonzepten darstellen. Die Kombination aus Wissensvermittlung durch lebende Tiere, sowie auch Forschungsarbeit ist dem Konzept herkömmlicher Zoos sehr ähnlich. Die Nachteile eines herkömmlichen Zoos, wie eine lebenslange Haltung gebietsfremder Tiere, können in diesen Stationen ausgeschlossen werden. Außerdem werden die Tiere in erster Linie aus medizinischen Gründen und nicht zu Unterhaltungszwecken gehalten. Die Interessen der Tiere und eine störungsfreie Arbeit mit diesen steht somit an erster Stelle. In Kombination mit weiteren Medien, welche die Aufklärungsarbeit unterstützen sollen, kann eine spannende Wechselwirkung zwischen Artenschutz, Bildung und Tourismus entstehen, von der sowohl Mensch, als auch Tier profitieren. Die Untersuchung der These könnte ein Musterprojekt für weitere Tieraufzucht- bzw. Auffangstationen sein.
Bildung und Artenschutz

Projektinfos
Jahr: 2023
Studiengang:
Architektur
Betreuung:
Kathmann, Matthias, Hon.-Prof. Dr.-Ing.Joedicke, Joachim Andreas, Prof.
Teilnehmer*innen:
Klaas Honsack
Projektart:
Abschlussarbeit


Zurück zur Projektübersicht


