Boizenburg Stadtmuseum

Perspektive Flursituation - Boitzenburger Geschichte

Projektinfos

Jahr: 2024

Studiengang:
InnenarchitekturKommunikationsdesign und Medien

Betreuung:
Hack, Achim, Prof.Polkehn, Hanka, Prof.

Teilnehmer*innen:
Carina Bravo, Wiebke Dreyer, Sophia Gebauer, Erik Meißner, Nina Sauer, Nazanin Tayebi, Antje Windhorst

Projektart:
EntwurfGruppenprojekt

Das Heimatmuseum Boizenburg befindet sich in einem denkmalgeschützten Bürgerhaus am Markt 1 und beherbergt eine stetig gewachsene Sammlung zur Stadt- und Regionalgeschichte. Die bestehende Ausstellung ist in die Jahre gekommen und bedarf einer umfassenden Neugestaltung, um ihre Inhalte zeitgemäß zu präsentieren und ein breiteres Publikum anzusprechen. Ziel ist es, in enger Zusammenarbeit mit der Museumsleitung ein modernes Ausstellungskonzept zu entwickeln. Dabei sollen die bestehenden Sammlungen neu geordnet und durch eine klare räumliche Struktur sinnvoll präsentiert werden. Ein besonderes Augenmerk liegt auf einer ansprechenden Gestaltung mit durchdachter Grafik und interaktiven Elementen, die den Besuchern einen lebendigen Zugang zur Geschichte ermöglichen.

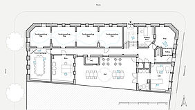
Grundriss Erdgeschoss
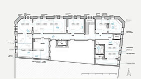
Grundriss Obergeschoss
Wandabwicklung Haupteingang - Ergeschoss
Perspektive Raum Welle, Themen-Tafel
Deckenspiegel Obergeschoss - Raum Welle
Perspektive Magazin - Raum Welle
QR-Code für gesamte 3D Raumsimulation Welle

Zurück zur Projektübersicht