Das Bootshaus mit Boot bietet die Grundlage einer erholsamen und effektiven Freizeitgestaltung an den Gewässern neben dem Alltag.
Für den Gesamtaufbau der Anlage wird die kleine und große Fläche eines Trapezes genutzt, wobei dessen Form stets unverändert bleibt. Der größere Teil stellt die Grundfläche des Hauses dar und wird ebenso für die Gemeinschaftsplätze innerhalb der Anlage verwendet. Der kleinere Teil bildet die Wege über das Wasser und Treffpunkte innerhalb der Anlage.
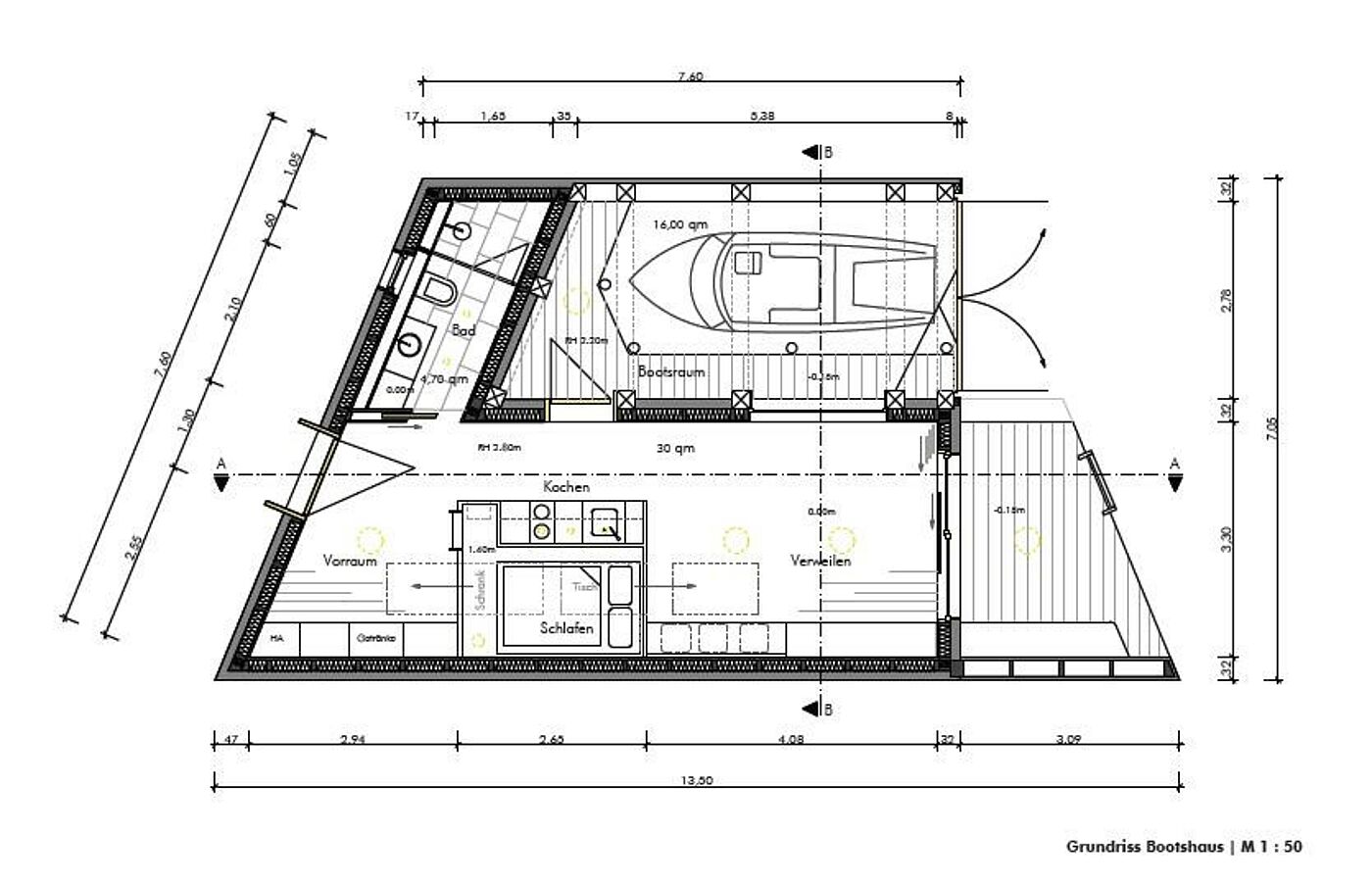
Das Bootshaus ist auf Stelzen errichtet, eingeschossig und zeigt einen einfachen Grundriss. Die Räumlichkeiten ordnen sich dabei nebeneinander an. Das Haus beinhaltet den Bootsraum und eine Räumlichkeit, die einen Vorraum integriert und die Möglichkeit für das Verweilen, das Schlafen und das Kochen bietet. Sanitäre Einrichtung ist vorhanden.
Es entsteht eine Anlage, die gleichwertig mit dem Bootshaus durch alle umliegenden Bereiche genutzt wird. Der Entwurf ist nicht an einen Standort gebunden. Er kann beliebig in verschiedene Richtung ausgeweitet und an viele Standorte angepasst werden.




