Ein Baustein für die Zukunft der Lübecker Innenstadt
Was zieht uns in Zukunft in die Innenstädte? Die Innenstadt der Zukunft ist ein komplexes Thema, welches sich mit Zukunftstrends und Szenarien für die Entwicklung unserer Innenstädte beschäftigt. Auf der Grundlage einer theoretischen Ausarbeitung wurde das Thema Innenstadt der Zukunft in einem städtebaulichen und architektonischen Entwurf umgesetzt. Dieser Entwurf gründet auf der Analyse der Lübecker Altstadt und beschäftigt sich mit einem Plangebiet am östlichen Rand der Lübecker Altstadtinsel. Das ausgewählte Plangebiet an der Kanalstraße eignet sich besonders für dieses Projekt, da es mit seiner aktuellen Nutzung für den ruhenden Verkehr ein hohes Verbesserungspotential darstellt. Mit dem städtebaulichen Entwurf entsteht ein attraktives neues Gebiet, welches auch in Zukunft die Menschen in die Innenstadt zieht. Mit seiner thematischen Aufteilung des Gebietes in drei Bereiche, wird eine zukunftsfähige Mischnutzung geschaffen. Anhand der Gestaltung der Uferpromenade und der Grünflächen wird ein Erholungsgebiet an der südlichen Achse der Kanalstraße geschaffen. Im Norden schließt der Entwurf mit einer Entdeckungsachse an, die das Thema Gewerbe und Industrie der Zukunft in die Stadt bringt. Die neue Mitte bildet das Herz des Entwurfes und präsentiert sich als Ort für das öffentliche Leben. Die Kanal-straße wird verkehrsberuhigt und als Shared Space ausgebildet.
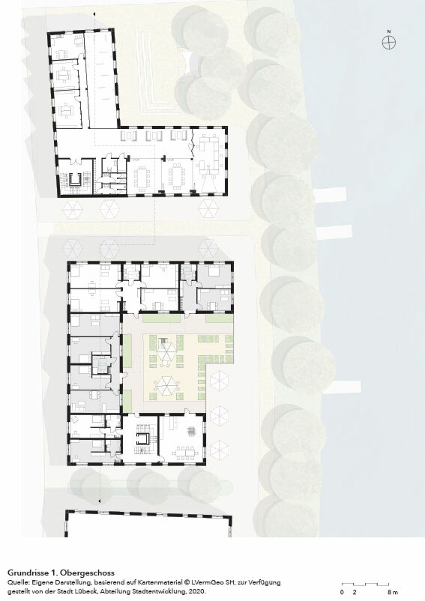
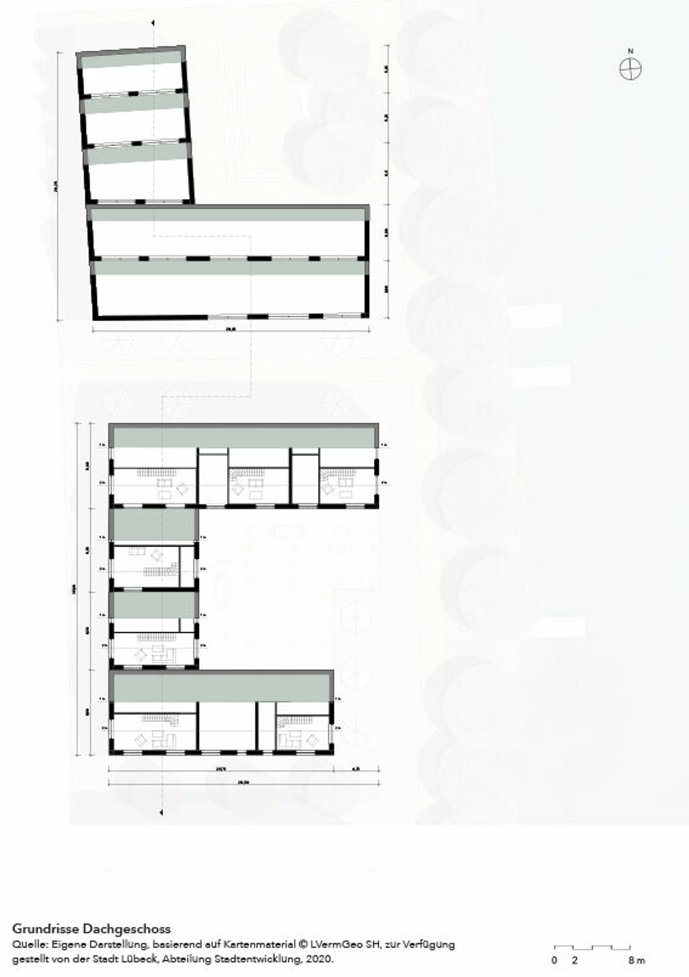
Der architektonische Entwurf schließt im Herzen des städtebaulichen Entwurfes an. Er beschäftigt sich mit dem Zukunftsforum, welches als Herzstück des Entwurfes den Gedanken von gemeinschaftlichem Austausch und dem Kreieren von Zukunftsvisionen über das Bauprojekt hinausträgt. Im Erdgeschoss des Zukunftsforums befindet sich ein großer Ausstellungsbereich, welcher in ein offenes Wohnzimmer/Café übergeht. Weiterhin wurde das anschließende Gebäude, als gemeinschaftliches Wohnprojekte mit öffentlicher Erdgeschossnutzung entworfen. Die entstandene Architektursprache der Gebäude schafft eine neue Identität für die südliche Achse der Kanalstraße.









