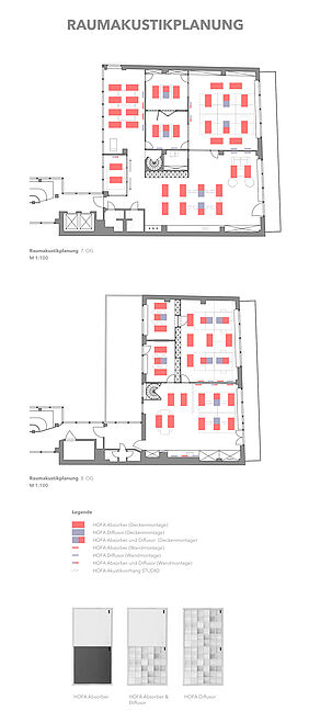
Die Agentur hat ihren Sitz im Herzen der alten Hamburger Speicherstadt in einem traditionellen hanseatischen Kontorhaus in den obersten zwei Etagen. Die Verbesserung der Raumakustik ist der Leitfaden des Konzepts, basierend auf dem vorangegangenen Workshop und einer Umfrage unter den Mitarbeitern von Blood. In Anlehnung an die Elbphilharmonie und die dort spielenden Orchester entwickelt sich eine Übertragung eines Sinfonieorchesters mit seinen verschiedenen Instrumentengruppen auf die Struktur der verschiedenen Abteilungen von Blood.
Wie bei einer Sinfonie mit ihren vier Sätzen überträgt sich dieser Ansatz auf vier Typologien von Räumen, in denen auf unterschiedliche Art und Weise gearbeitet wird. Die vier Sätze werden durch die Partituren der Sinfonie ergänzt. Diese definieren die individuellen Ziele der Neugestaltung.













