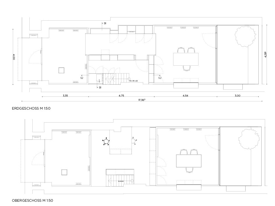
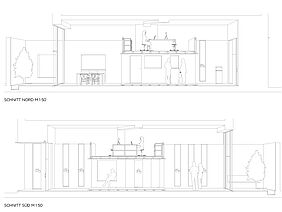
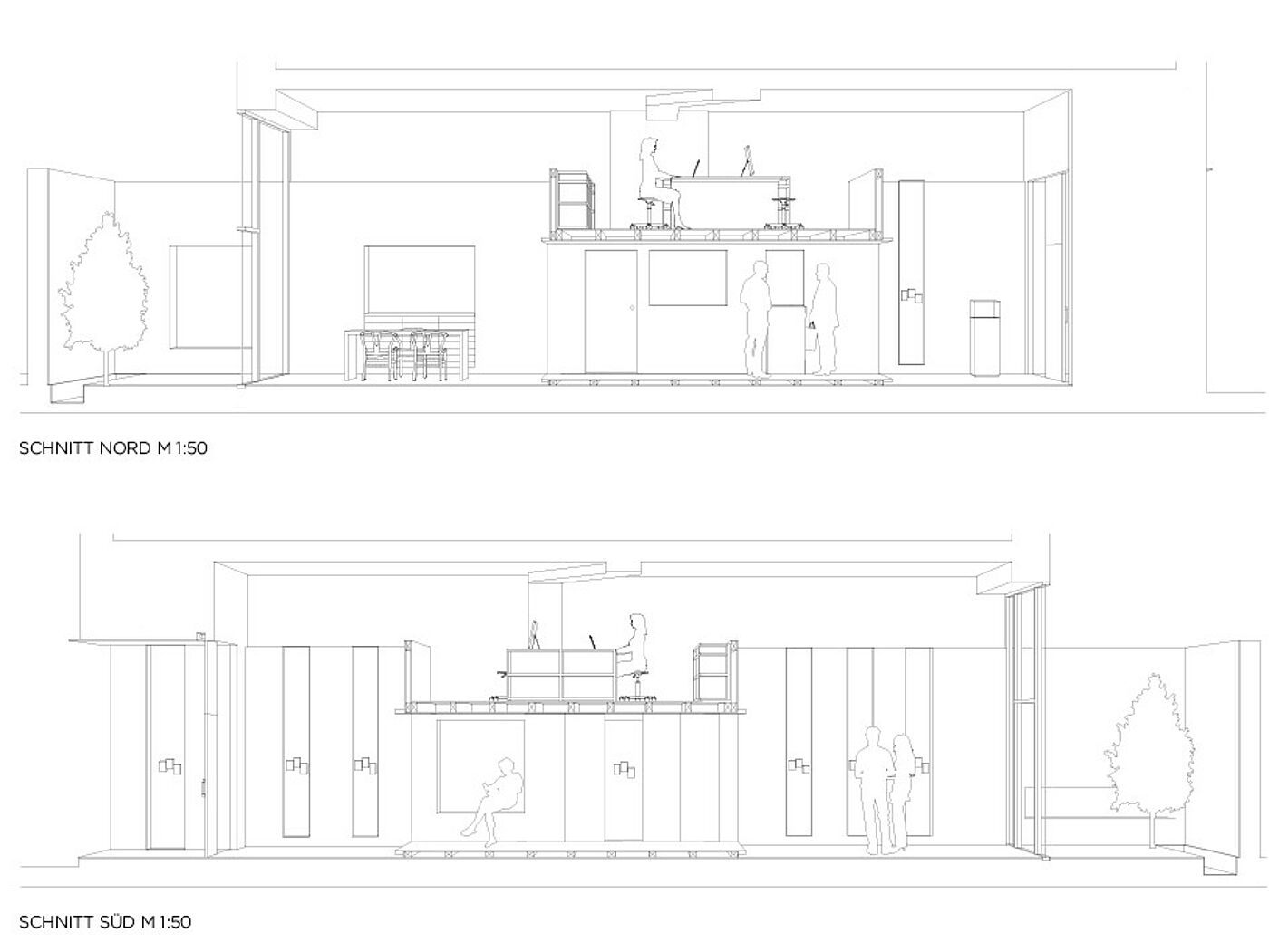
In einem Berliner Altbau befindet sich der Goldschmied chic choc. Der Entwurf bietet Räumlichkeiten für Präsentation, Verkauf und Beratung sowie separate Bereiche für Büroarbeiten und kleine Reparaturen. Des Weiteren ermöglicht der Entwurf kleine Veranstaltungen für die Vorführung neuer Kollektionen, Vernissagen oder Lesungen.
Durch einen ins Zentrum des kleinen Ladenlokals gesetzten Würfel werden aus einem Raum fünf Räume. Der Würfel wird durchdrungen von einem Gang und greift so das Bild einer Goldmiene in abstrahierter Form auf. Er verbindet Ausstellungs- und Beratungsbereich und schafft einen Sichtbezug vom Eingang zum kleinen Außenbereich am Ende des Ladenlokals. Frei verschiebbare und demontierbare Ausstellungswände sorgen für große Variabilität in der Produktinszenierung. Durch die Möglichkeit, die Trägerplatten aus Stahlblech mit unterschiedlichsten Materialien zu kaschieren, können unendlich viele Bilder und Stimmungen erzeugt werden, um jeweilige Themen der wechselnden Schmuckkollektionen aufzugreifen. Die Schmuckstücke selbst werden auf variablen mit Magneten versehenen Körpern frei auf der Trägerplatte platziert und sorgen so für hohe Flexibilität bezüglich Präsentation und Nutzung.



