Das freistehende und eingeschossige Gebäude befindet sich in unmittelbarer Nähe zum Naturschutzgebiet und dem Sund und wird auf Grundlage des vom Asta erstellten Nutzungskonzeptes saniert und modernisiert.
Dieses sieht vor, das Haus 8 tagsüber als Café und einmal die Woche als Konferenzraum für Astasitzungen, abends als Bar und gelegentlich als Partyraum zu nutzen. Dabei richtet sich das Angebot nicht nur an die Studierenden der Hochschule, sondern auch an die Laufkundschaft und Touristen des Ostseeradweges, welcher direkt an Haus 8 entlangführt. Es wird also mit einer kommerziellen Nutzung gerechnet. Es werden ausgewählte Heiß- und Kaltgetränke sowie Kuchen und kleine Speisen angeboten werden. Dabei darf das Personenlimit von 40 Personen (=Sitzplätzen) im Innenraum nicht überschritten werden.
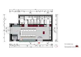
Um die Barrierefreiheit zu gewährleisten, wird der Boden im Inneren um 23,5 cm aufgeschüttet und so ebenerdig zum Außenraum. Ein in der Gestalt flexibles Einbauelement trennt den Gastraum von den Nebenräumen und bietet Stauraum für eine variable Nutzung des Raumes: Während tagsüber der Cafébetrieb stattfindet, kann beispielsweise das gesamte Mobiliar in dem Einbauschrank verschwinden. So lässt sich der leere Raum bei Partys als Ganzes nutzen. Für die wöchentlichen Astasitzungen kann die Möblierung entsprechend einer Besprechungssituation angepasst werden.
Die Theke besteht aus vier mobilen Elementen, die je nach Bedarf verschoben und umgenutzt werden können. Der Rücktresen ist mit Falttüren flächenbündig verschließbar. Um die Anzahl der losen Bestuhlung zu minimieren, ist der Fensterrahmen etwas breiter ausgebildet und dient somit sowohl innen als auch außen als Sitzbank. Die große Fensterfront stellt außerdem einen Bezug zwischen dem Innen- und Außenraum her. Zur Südseite öffnet sich eine Terrasse, die mit flexiblen Liegestühlen und Bänken zum Verweilen einlädt.
Für die Einbauten wurde Multiplex mit einer Melaminbeschichtung in dunklem burgunderrot verwendet. Die Drehschiebetüren sind aus einem Lochblech, um bei geschlossener Tür mit innen liegenden LEDs für eine besondere Lichtstimmung zu sorgen und auch die dort verstauten Stühle schemenhaft sichtbar zu machen. Ein Hingucker sind die Rückwände, die mit Rollrasen verkleidet sind.
Die Farbgebung der Fenster- und Türrahmen sowie die Sitzpolster und kleiner einzelner Elemente ist als Kontrast zu dem Rotton ein dunkles minttürkis. Die Nebenräume und die Wand am Rücktresen sind mit weißen quadratischen Fliesen gefliest mit hellroten Fugen. Diese tauchen auch noch einmal an der Fassade als Banderole auf. Der Besenstrichputz nimmt das dunkle burgunderrot der Einbauelemente auf.
In der schwarz gestrichenen Sauerkrautdecke sind Haken eingeschraubt, die je nach Nutzung eine einfache Umpositionierung der Pendelleuchten ermöglichen. Für ausgelassene Partys können diese sogar ganz unter die Decke gehangen werden. Zum Laden elektronischer Geräte sind über den Arbeitstischen Steckerboxen von der Decke abgependelt. Eine große geschwungene Lichtskulptur sorgt für die Grundausleuchtung des Raumes. Zusätzlich dazu ist eine Metallschiene direkt mit der Decke befestigt, in die schwenkbare Spots eingehängt werden können und sowohl in Farbgebung, Lichtstimmung und Position flexibel sind.
Der Entwurf ist so gestaltet, das Nutzungskonzept noch größer zu denken und das „Haus 8“ über die Hochschule hinaus als Kulturstandort zu etablieren. Es könnten dort über das gesamte Jahr Lesungen, Konzerte, Workshops, Infoabende, Spielerunden und vieles mehr stattfinden.











