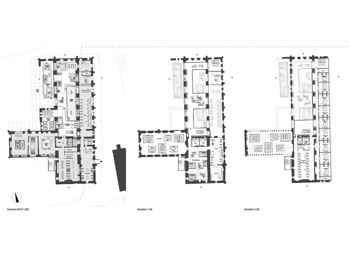
Für das ehemalige Wirtschaftsgebäude des Klosterareals wurde ein neues, dem Ort angemessenes Konzept entwickelt: Ein Thermalbad-Hotel.
Es handelt sich um eine vielfältige Therme mit unterschiedlichen Wellness-Erlebnissen. Die Übernachtungsmöglichkeiten in dem ergänzten Bauteil, sollen dem Besucher die Möglichkeit geben, sich für einige Tage in Bad Doberan nieder zu lassen und sich zu erholen und entspannen. Das Gebäude gliedert sich in drei Teile; im Erdgeschoß befinden sich der Eingangsbereich, ein kleines Bistro sowie im Haupttrakt die Badelandschaft. Im 2. Obergeschoß befindet sich der Beauty- und Wellnessbereich und im letzten Geschoß die Hotelzimmer mit Restaurant.
Ziel des Entwurfs war es, die vorhandene Struktur so weit wie möglich beizubehalten und diese zu unterstreichen. Dafür werden die vorhandenen Nischen Teil der Badelandschaft. Durch L-förmige Sitz- und Liegeelemente werden die weiteren Becken zoniert und dadurch definiert. Es entsteht so eine Topografie von Wasser- und Liegeelementen. So ergeben sich unterschiedlich große Aufenthaltsflächen. Die versetzten Galerien bilden mehrere Lufträume, wodurch sich im Spa-Bereich ein spannendes Licht- und Schattenspiel bildet. Die neuen Bauteile wirken wie ein Implantat im Bestand, dass die vorhandenen Mauern respektiert und sich von ihnen abhebt.





