Diese Masterarbeit untersucht die adaptive Wiederverwendung des ehemaligen Galeria Kaufhof-Warenhauses in Celle, Deutschland, und verwandelt eine stillgelegte kommerzielle Struktur in eine multifunktionale öffentliche Einrichtung, die auf zeitgenössische städtische, soziale und ökologische Herausforderungen reagiert. Das Projekt führt vier vertikal geschichtete Programme ein – Klinik, Einkauf, Kultur und Innovationszentrum – die jeweils in das bestehende architektonische Gefüge integriert sind, um Koexistenz, Interaktion und langfristige Flexibilität zu fördern.
Die Entwurfsstrategie basiert auf Erhaltung und Transformation. Der ursprüngliche Beton-Skelettbau, der vertikale Erschließungskern sowie die offenen Geschossflächen werden erhalten und bewusst inszeniert, um den gebundenen Kohlenstoff zu reduzieren und Bauabfälle zu vermeiden – im Einklang mit den Zielen nachhaltiger Entwicklung. Durch gezielte Eingriffe wie neue vertikale Lufträume, leichte Trennwände und minimale Anpassungen der Deckenstruktur entstehen neue Nutzungen innerhalb des bestehenden Gebäudes Rahmens, ohne dessen Vergangenheit auszulöschen.
Ein zentrales architektonisches Element ist die Einführung einer Doppelfassade, welche die energetische Leistung des Gebäudes verbessert, Tageslichtnutzung, natürliche Belüftung und Schallschutz optimiert. Diese Fassade definiert die Beziehung des Gebäudes zum Stadtraum neu und verleiht ihm eine neue Identität, die seiner bürgerlichen und kulturellen Funktion gerecht wird.
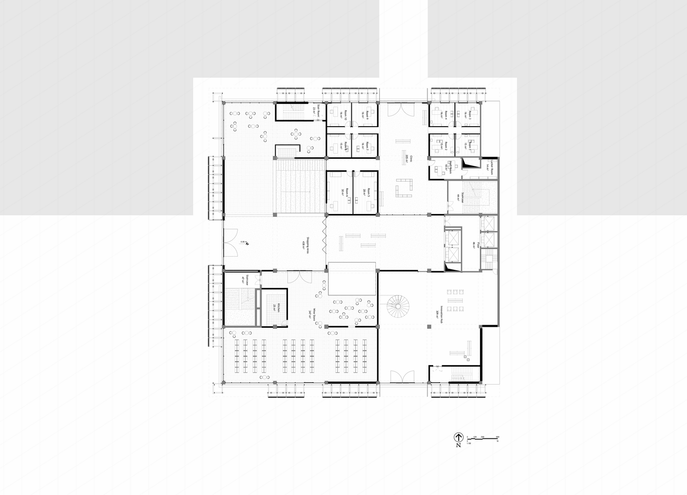
Funktional beherbergt das Gebäude Gesundheitsdienste in den oberen Geschossen, um Ruhe und Privatsphäre zu gewährleisten, publikumsorientierte kommerzielle und Freizeitbereiche im Erd- und Untergeschoss, flexible Kulturräume in den mittleren Ebenen sowie dynamische Arbeits- und Werkstätten in den obersten Geschossen. Diese vertikale Zonierung fördert Orientierung, Barrierefreiheit und räumliche Logik und unterstützt gleichzeitig die interdisziplinäre Zusammenarbeit verschiedener Nutzergruppen.
Insgesamt entwirft das Projekt ein sozial inklusives und ökologisch sensibles Wiederverwendungsmodell, bei dem ein ehemaliges Symbol des Konsums zu einer produktiven öffentlichen Infrastruktur umgestaltet wird. Der Entwurf bewahrt nicht nur den architektonischen Wert, sondern trägt aktiv zur kulturellen, wirtschaftlichen und ökologischen Erneuerung der Celler Innenstadt bei.













