Für die Ruine des Wirtschaftsgebäudes im Bad Doberaner Kloster sollten ein neues Nutzungskonzept, ein Dach und der Entwurf des ganzen geplant werden.
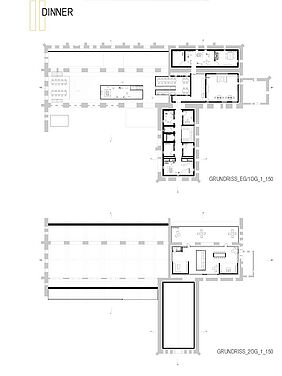
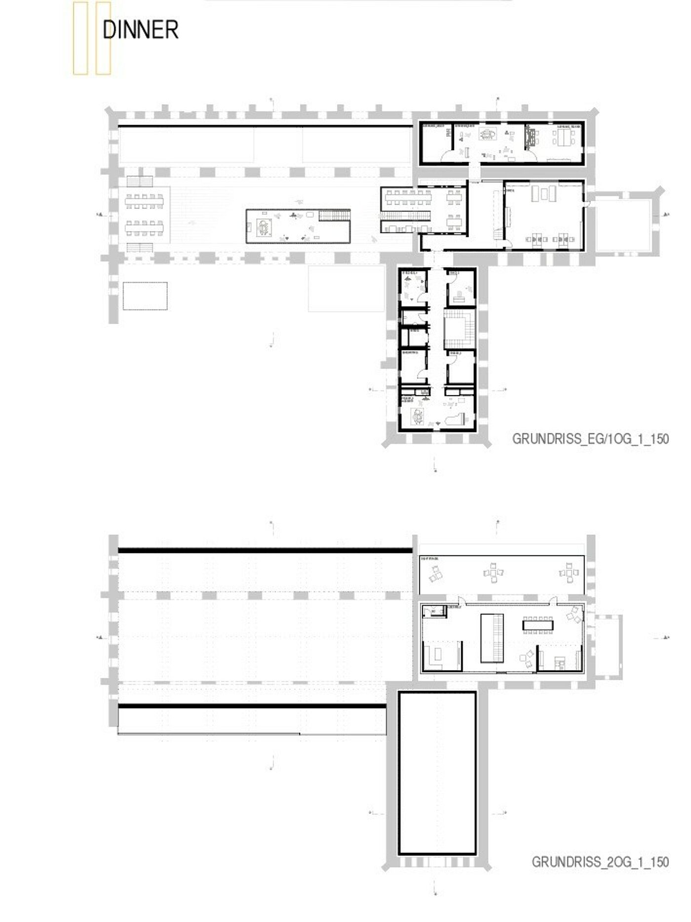
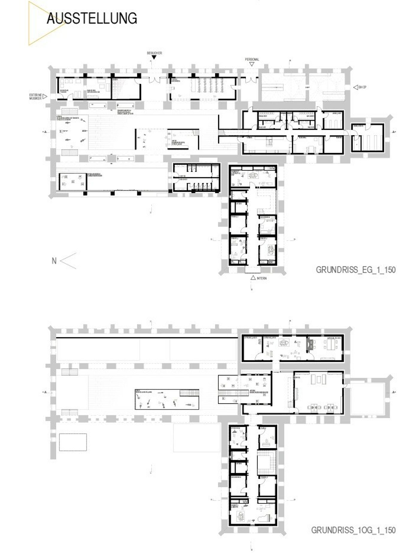
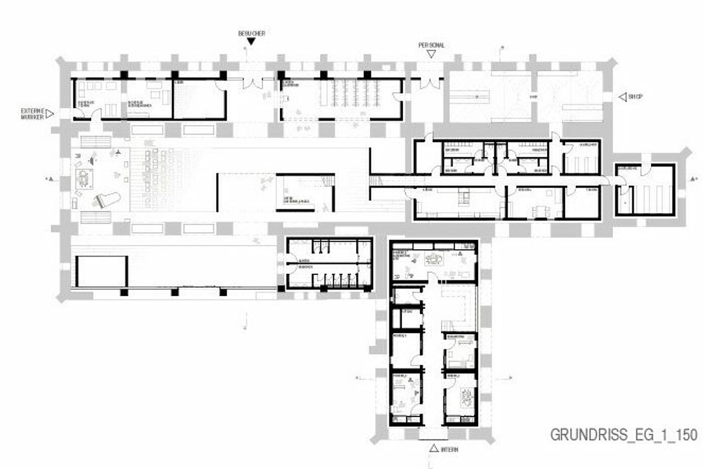
Es entstand ein Musikzentrum unter dem Namen "Jukebox" mit einer hörbaren Ausstellung zum Thema Musik, die auch als Präsentationsfläche für die ortsansässigen Bands dient. Die Ausstellungsbereiche bieten ebenfalls Platz für Konzerte auch in Kombination mit Gastronomie. Im Nebengebäude finden sich Proberäume und Aufenthaltsbereiche, sowie ein Büro für ein Plattenlabel und Nebenräume.
Das Konzept soll sowohl Besucher als auch Einheimische verschiedenen Alters ansprechen. Ein Haus im Haus Konzept unterstützt die klare Differenzierung zwischen Bestand und Neubau und sorgt gleichzeitig dafür, dass eine entsprechende Schallentkopplung der Proberäume und der Aufnahmeräume gewährleistet wird. Die neue Nutzung des Wirtschaftsgebäudes ergänzt so thematisch die anderen beiden Gebäude des kleinen Ensembles, welche ebenfalls kreative Angebote wie Tanz- und Kunstkurse bieten.





