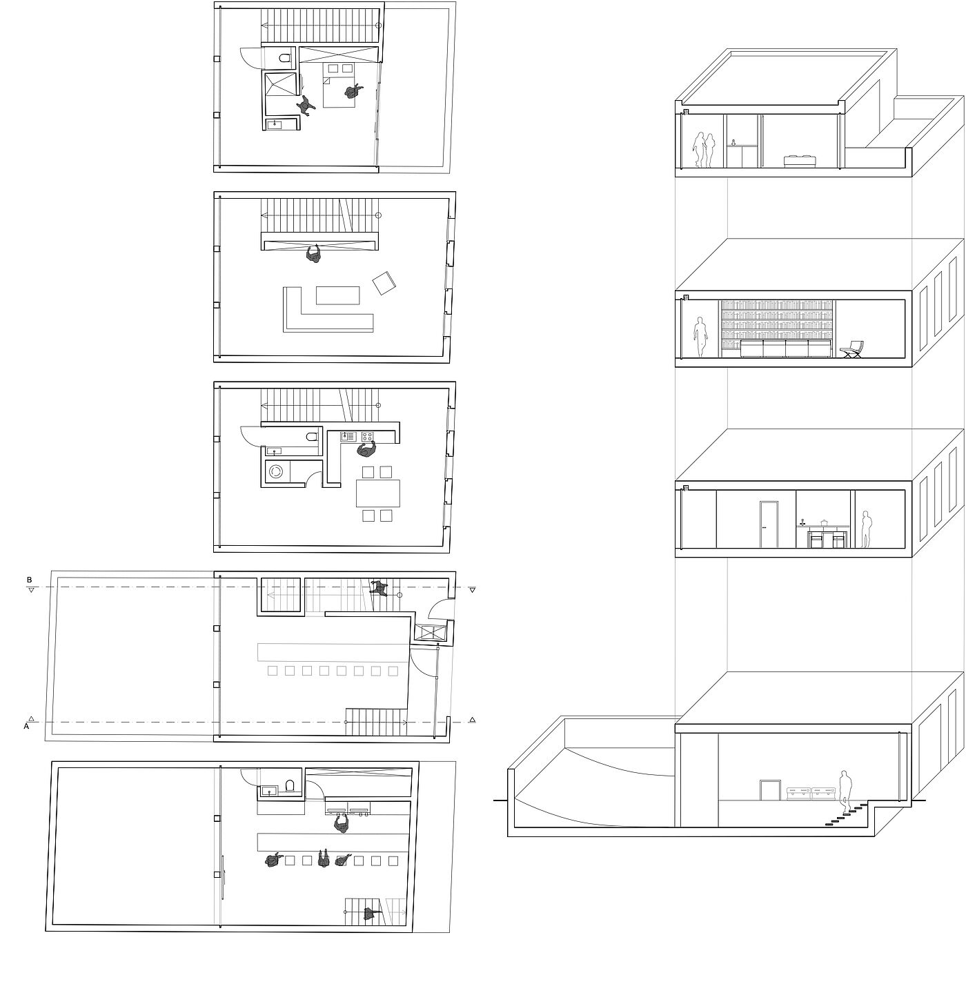
Das Kaffeehaus ist in einen öffentlichen Bereich im Souterrain und einen privaten Bereich in den Obergeschossen gegliedert. Das Souterrain bietet Platz für eine Kaffeebar mit angeschlossenem Garten. Der Privatbereich gliedert sich in den repräsentativen Ess- und Küchenbereich im 1. Obergeschoss, den großzügigen Wohnbereich mit Bibliothek im 2.Obergeschoss und dem Schlafzimmer mit offenem Bad im Dachgeschoss. Beide Gebäudeteile sind unabhängig voneinander erschließbar. Die Materialwahl aus rotem Backstein nimmt Bezug auf die gegenüberliegende St. Nikolaikirche und den hanseatischen Kontext der Stadt Wismar.
Kaffeehaus

Projektinfos
Jahr: 2018
Studiengang:
Innenarchitektur
Betreuung:
Baron, Gerd, Prof.
Teilnehmer*innen:
Felix Görrissen
Projektart:
Gruppenprojekt
Zurück zur Projektübersicht


