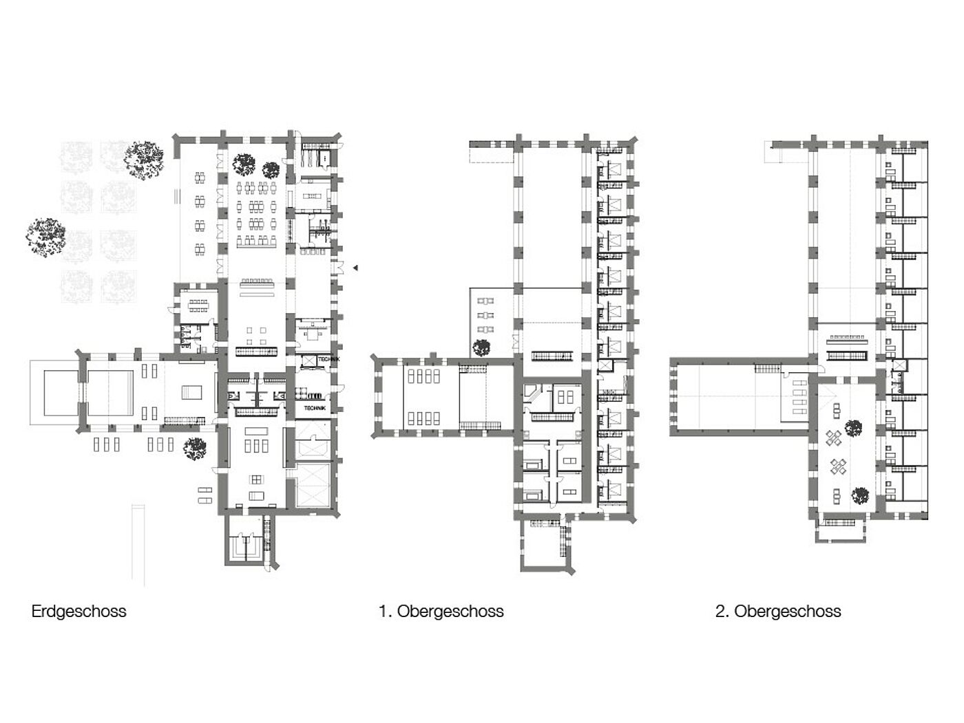
Das neue Nutzungskonzept für das Wirtschaftsgebäude auf dem Klostergelände in Bad Doberan sieht ein Natur-/Kräuterhaus mit verschiedenen Funktionen vor. Das Angebot gliedert sich in einen Spabereich mit verschiedensten Kräuteranwendungen, Saunen und Bädern, ein Restaurant mit einer besonderen Kräuter-/ Vitalküche sowie einige Hotelzimmer auf zwei Ebenen. Eine Besonderheit ist die Ausbildung des Daches. Ein Glasstreifen zieht sich horizontal im Traufbereich um das gesamte Gebäude und schafft eine interessante Lichtführung. Die Ruinen mit ihren charakteristischen Rundbögenakarden bleibt durch Glasflächen, Bepflanzung und reduziertes Mobiliar erlebbar.
Le Jardin

Projektinfos
Jahr: 2014
Studiengang:
Innenarchitektur
Betreuung:
Baron, Gerd, Prof.Schellhorn, Henning, Prof.
Teilnehmer*innen:
Lea Marie Franck
Projektart:
Gruppenprojekt
Zurück zur Projektübersicht




