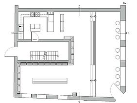
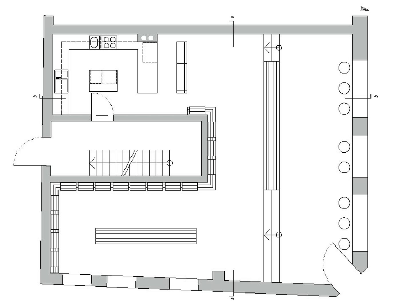
Im Maison de Croustilles werden Chips in schonenden Herstellungsverfahren aus hochwertigen regionalen Zutaten von Hand zubereitet. Sie bieten eine delikate fett- und acrylamidfreie Alternative zur industriell produzierten Supermarktware und schaffen einen innovativen Beitrag zu einer gesundheitsbewussten Ernährung ohne Verzicht auf Genuss. Eine Corporate Identity dient als Leitfaden für die Gestaltung des Ladenlokals und sorgt für einen Imagewechsel der als Junkfood verschrienen Chips. Weitere Maßnahmen zur Aufwertung werden durch ein Feinkostwarenangebot, Verköstigung und offene, einsehbare Herstellung getroffen.
Gewinner des DIA-Preises zur Jahresausstellung 2013





