„Die Immobilität und Inflexibilität von Gebäuden in Deutschland hat ungenutztes Potenzial in Bezug auf die effektive Nutzung von Wohnraum bei der Anpassung von sich ändernden Bedürfnissen wie Platzbedarf, Standortwechsel und Erscheinungsbild. Aufgrund der Notwendigkeit leicht, erweiterbar und wiederverwertbar zu sein, ist modulare und mobile Architektur für eine nachhaltige Bauweise prädestiniert. Durch die Möglichkeit nicht nachwachsende und schwer recycelbare Rohstoffe bei der Bauweise einzusparen und die eventuell anfallenden Umbau-, Abriss- und Neubauarbeiten von Immobilien zu umgehen, hat modulare, mobile Architektur das Potenzial den Verbrauch von Energie und nicht nachwachsenden Rohstoffen einzusparen.“
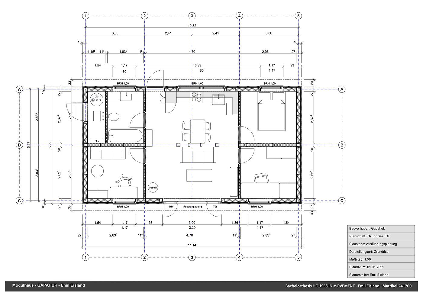
Emil Eisland entwickelt nachhaltige Module und setzt sich intensiv mit den unterschiedlichen Möglichkeiten auseinander, diese so zu koppeln, dass Gebäude für die unterschiedlichsten Nutzeranforderungen und Wünsche realisierbar sind. Die leichte Holzbauweise ermöglicht es ihm, dass die Module ohne größere Umbauten an einem anderen Bauort weitergenutzt werden können und sich den Nutzerwünschen anpassen können. Dies hat zur Folge, dass das Haus mit dem Bewohner umziehen kann. Herr Eisland hat die Betrachtungsgrenzen klar definiert und innerhalb dieser die Parameter für seinen Entwurf herausgearbeitet. Baukonstruktive sowie bauphysikalische Themenfelder wurden im Entwurf berücksichtigt, ebenso hat er die Hürden der Bauleitplanung aufgezeigt. Mit seiner Arbeit ist ein sehr guter Beitrag entstanden, um in Zukunft dafür zu sorgen, dass ein größeres Augenmerk auf die modularen und transportablen Bauweisen gerichtet wird. Mit diesen Gebäude-Eigenschaften lassen sich zukünftig Ressourcen einsparen.
Emil Eisland hat seinen Entwurf selbst auch realisiert. Fotos und Zeichnungen: Emil Eisland






















