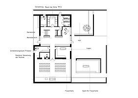
Aufgrund der Funktion des Besucherzentrums als Ort der Information und Orientierung haben wir uns für das Grundstück A entschieden, da es an einer Hauptachse liegt und leicht sichtbar ist. Für die Trauerhalle haben wir uns für das Grundstück B entschieden, das aufgrund seiner Abgeschiedenheit und Schutzwirkung für Beerdigungszeremonien geeignet ist. Unsere Erfahrung zeigt, dass es ratsam ist, die Funktionen der Kapelle und des Besucherzentrums nicht am selben Ort zu kombinieren, um eine angemessene Atmosphäre für Trauernde zu schaffen.
Bei der Gestaltung der Gebäude berücksichtigen wir die Anforderungen an eine barrierefreie Umgebung, die Integration in die Infrastruktur des Friedhofs, eine dynamische Raumgestaltung sowie die Einbindung von Natur und Nachhaltigkeit. Die Sichtachsen sind ebenfalls von großer Bedeutung, da der Olsdorfer Friedhof nicht nur ein Ort der Trauer, sondern auch ein Ort des Lebens ist. Daher wollen wir sicherstellen, dass unsere Entwürfe die Philosophie des Friedhofs widerspiegeln und dazu beitragen, den Friedhof als lebendigen Ort zu erhalten..
Neue Räume für den Ohlsdorf Friedhof in Hamburg

Projektinfos
Jahr: 2023
Studiengang:
Innenarchitektur
Betreuung:
Baron, Gerd, Prof.Schellhorn, Henning, Prof.
Teilnehmer*innen:
Ekaterina Miroshnichenko
Projektart:
Entwurf
Zurück zur Projektübersicht











