Durch die gute Lage an der Hauptstraße des Ortes, in der Nähe des Bahnhofes und großem Parkplatz am Haus ist das Orpheum sehr gut zu erreichen. Das Fehlen von Gastronomie und Kul-
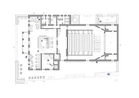
turprogramm im Ort schreien förmlich nach ei- nem neuen Treffpunkt. Deshalb soll das Orpheum ein neuer Lokalmotor, ein Ort zum Vernetzen, in Erinnerungen schwelgen und Entspannen in der Freizeit sein. Zusätzlich zur Kino und Theaternut- zung wird nun im EG und im OG Gastronomie platziert, die in wirtschaftlicher und sozialer Hin- sicht eine gute Ergänzung darstellt und den Aufenthalt länger und auch unabhängig vom Kino ermöglicht. Die verschiedenen Eingangsmöglich- keiten sorgen dafür, dass die verschiedenen Be- reiche auch unabhängig voneinander geöffnet, ge- schlossen oder für Veranstaltungen vermietet werden können. Damit die Familie Scholz weiter- hin im Haus leben kann wird außerdem ein Teil des Dachgeschosses ausgebaut.
So entsteht ein Dreiklang aus Austauschen im Bistro oder in der Bar, Eintauchen in fantastische Welten des Films oder des Theaters und Leben.












