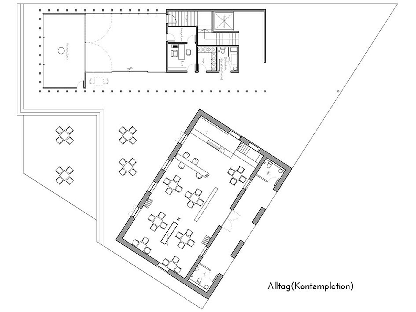
Der Blick zum See bildet die Basis für die Ausrichtung des Erweiterungsbaus. In dessen Achse ist er als Aussichtsplattform (EG und Dachterrasse) konzipiert und in das Gelände eingelassen. Neben dem Hauptaspekt der Kontemplation bietet der Neubau eine flexibel nutzbare Mehrzweckhalle für unterschiedliche Veranstaltungen: Trauerfeiern, Gesprächskreise, Vorträge etc. Durch Öffnung und Anbindung des Meditationsraums kann die Fläche zusätzlich erweitert werden. Das Thema der erweiterbaren Fläche findet sich auch im Innenraum des Bestandsgebäudes wieder, das in der Hauptsache gastronomischen Zwecken dient. Oberflächen aus Sichtbeton, helle Hölzer und eine aus monotaktisch gereihten Stützen bestehende Fassade schaffen eine dem Ort angemessene, ruhige Atmosphäre.





