Auf dem Gelände des Bürgerparks entsteht ein botanisches Museum, das die Pflanzen Nordeuropas sammelt und für Besucher ausstellt.
Der eigentliche Zweck des Museums liegt nach wie vor in der Präsentation von Objekten, deren Rezeption dem Betrachter nicht nur Erkenntnis vermittelt, sondern auch ein ästhetisches Erlebnis bereiten soll.
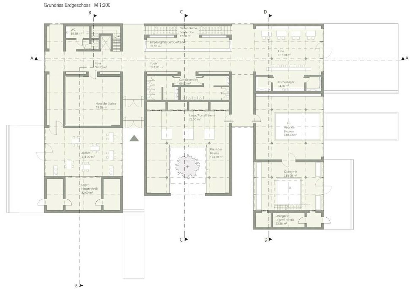
Die zu präsentierenden Objekte werden in drei Gruppen aufgeteilt, wodurch die Räumlichkeiten des Museums bestimmt werden. So ergeben sich drei „Häuser“: Haus der Bäume, Haus der Blumen und Haus der Steine, wo Moose und Flechten zusammengebracht sind. Die Gestaltung der Häuser vermittelt eine bestimmte Atmosphäre, die den ausgestellten Objekten entspricht. Die Exponate werden in Form von Herbarien und auch als lebende Pflanzen präsentiert.
Gemeinsam mit der Hauptexposition finden im Museum auch Sonderausstellungen statt. Die Exponate dafür sollen von den Interessenten wie Gartenvereine, naturwissenschaftliche Einrichtungen und private Personen zu Verfügung gestellt werden. Das Museum verfügt über einen Vorführungs- und Seminarraum und über eine digitale Informationsdatenbank, wo man detaillierte Beschreibungen von Sammlungen und wissenschaftliche Artikel zum Thema pflanzliche Welt findet. Die Datenbank ist selbstverständlich für Besucher zugänglich.
Die bildende Funktion des Museums wird durch ein besonders für die Schüler vorgedachtes Programm unterstützt. Das Programm beinhaltet einen Rundgang durch alle Ausstellungen, Vorführung eines populärwissenschaftlichen Filmes und anschließend Zusammenarbeit im Atelier. Im Laufe des praktischen Unterrichts können den Kindern zum Beispiel die Prinzipien von Selektion oder die Methoden von Holzbearbeitung dargebracht werden. Die Basteleien oder selbst gepflanzte und gezüchtete Blumen bekommen nachher einen Platz in den Ausstellungsvitrinen des Museums.





