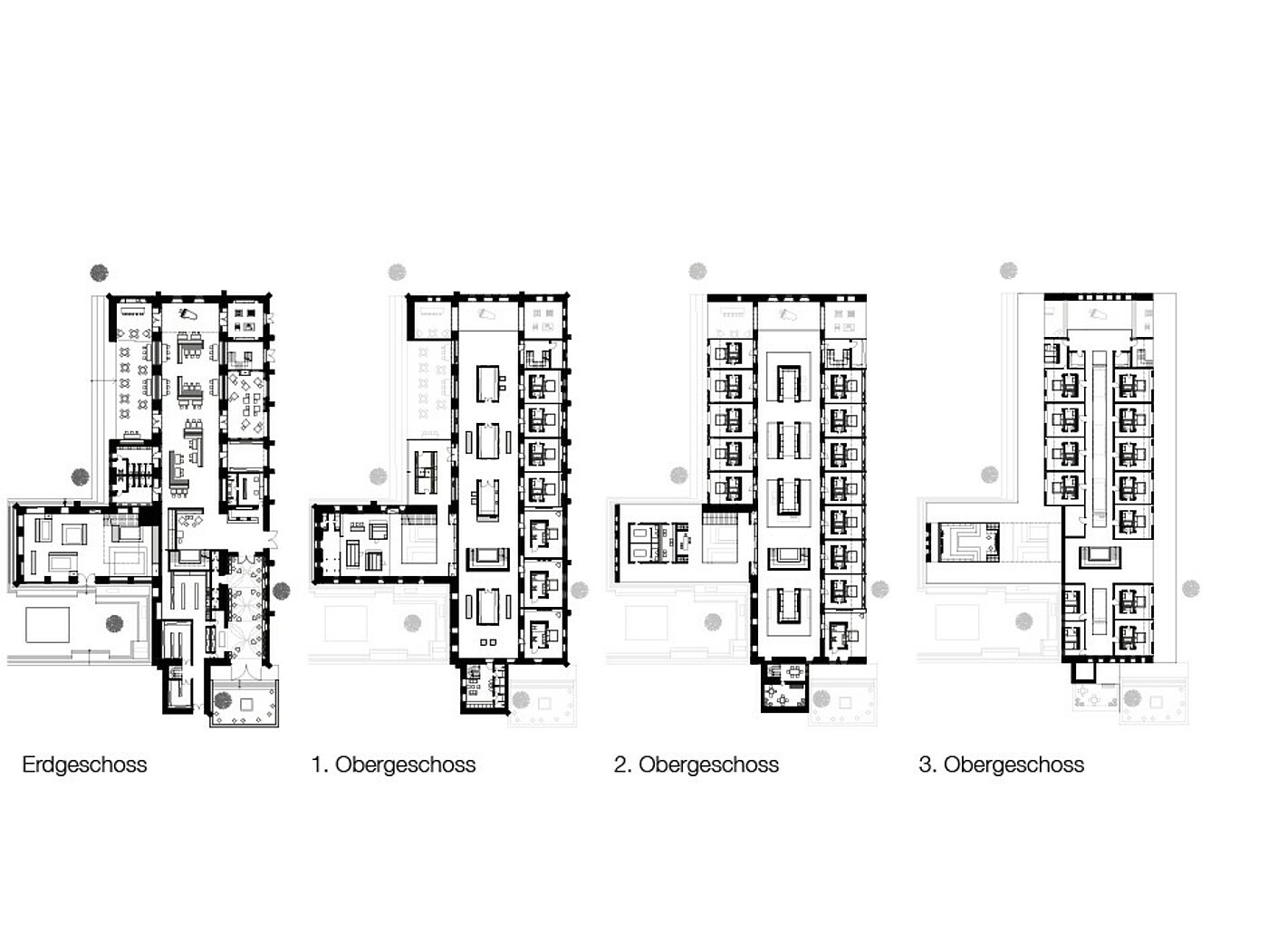
Ein Klosterareal der Zisterzienser-Mönche befindet sich in Bad Doberan. Es ist ein noch heute von einer Mauer umschlossenes Gelände, westlich der Altstadt. Dem in sich geschlossenen Klosterareal fehlt ein einheitliches Gesamtnutzungskonzept, das sowohl das große Gelände als auch die einzelnen Gebäude einbezieht, das bisherige Nutzungen ergänzt und somit ein attraktives Ziel für Touristen aber auch Einheimische ist. Das Wirtschaftsgebäude dient zukünftig als Hotel. Die Besonderheit des „Salt & Soul“ definiert sich durch den Namen. Salz spielt dabei nicht nur im gastronomischen Bereich eine wichtige Rolle, sondern charakterisiert den Spa Bereich des Hotels mit Salzanwendungen, Salzbädern, einer Salzsauna und einem Salzraum. Die dort verwendeten Produkte werden eigens, auch für den Besucher sichtbar, zusammengestellt und im Shop zusammen mit außergewöhnlichen Gewürzsalzen verkauft. Der Shop bietet die Möglichkeit, die Produkte direkt zu probieren und zu verkosten, um sich von der besonderen Qualität überzeugen zu können. Verschiedene Bereiche bedienen die Bedürfnisse der Gäste und schaffen durch Galerien und Lufträume einen spannenden neuen Ort in der historischen Ruine. Das „Salt & Soul“ richtet sich gleichermaßen an den Gaumen und die Seele und schafft einen wohltuenden Ort der Ruhe und des Geschmacks.
Salt & Soul

Projektinfos
Jahr: 2014
Studiengang:
Innenarchitektur
Betreuung:
Baron, Gerd, Prof.Schellhorn, Henning, Prof.
Teilnehmer*innen:
Kristin Kresser
Projektart:
Gruppenprojekt
Zurück zur Projektübersicht




