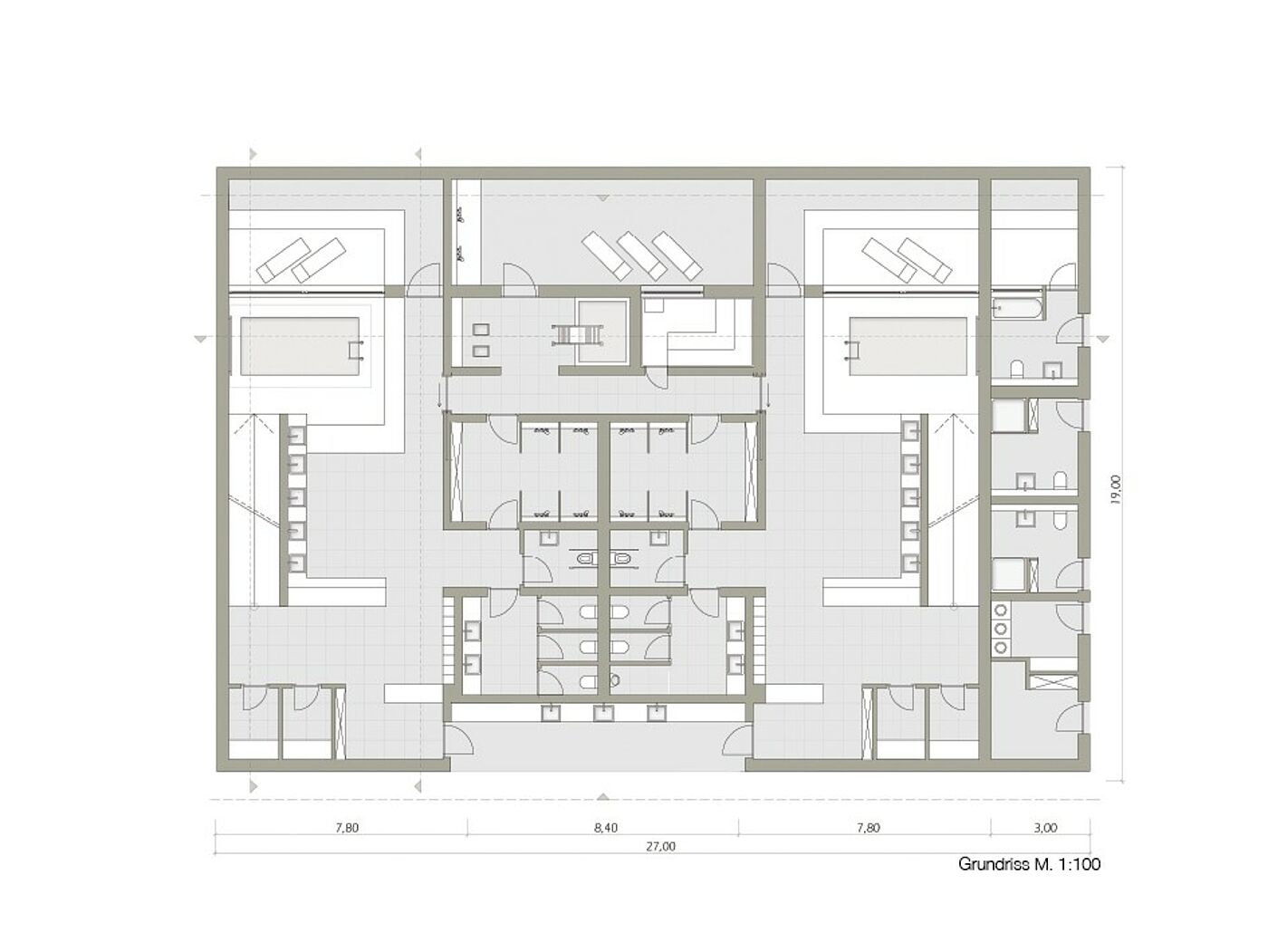
Ziel des Entwurfes ist es, einen Ort der Entspannung zu schaffen. Die Sanitäranlage soll für alle Generationen ansprechend sein, sowie den Anforderungen an Barrierefreiheit gerecht werden. Die Anlage gliedert sich in drei Bereiche. Einen Zugang für Frauen und einen für Männer sowie einen gemeinsamen Wellnessbereich. Hier befindet sich eine Sauna mit Fußwärmebecken und Tauchbecken. Es gibt zusätzlich private Mietbäder und einen kleinen Waschraum. Von einem überdachten Eingangsbereich, in dem sich Abwaschbecken befinden, gelangt man in die Sanitärbereiche. Der Grundriss ist klar strukturiert. Die Bereiche für Männer und Frauen sind identisch an der Mittelachse gespiegelt. Zunächst gelangt man in die Schmutzzone, in der eine Sitzbank und ein Regal zum Schuhe ausziehen auffordern. Von hier aus gelangt man in den Umkleidebereich mit Schließfächern und Umkleidekabinen. Ein Körper, aus dem sich die Waschtische, ein Podest und eine Bank entwickeln, gliedert den Raum. In das Podest ist ein Schwimmbecken integriert, das zum Entspannen einlädt. Ein kleiner Hof dient sowohl als Sichtschutz und Ruhepol.
Sanitäranlagen Mühlenhof

Projektinfos
Jahr: 2014
Studiengang:
Innenarchitektur
Betreuung:
Baron, Gerd, Prof.
Teilnehmer*innen:
Elina Watschkowa
Projektart:
Gruppenprojekt
Zurück zur Projektübersicht


