Während der ländliche Raum lange Zeit von Landflucht geprägt war, unterstützt die Corona-Pandemie einen Trend, der schon seit längerem ablesbar ist: Immer mehr Menschen träumen von einem Leben auf dem Land. Während diese Vorstellung früher nicht mit dem Beruf vereinbar zu sein schien, bringen das Home-Office sowie die voranschreitende Digitalisierung nun eine potentielle neue Flexibilität in die Lebensgestaltung.
Der Entwurf beschäftigt sich mit der Umnutzung einer Scheune im Ort Streu auf Rügen, die als letztes bauliches Zeugnis auf dem brachgefallenen Areal der Gutsanlage Streu steht und mit der Fragestellung, wie das Scheunengebäude den Ort nachhaltig stärken kann.
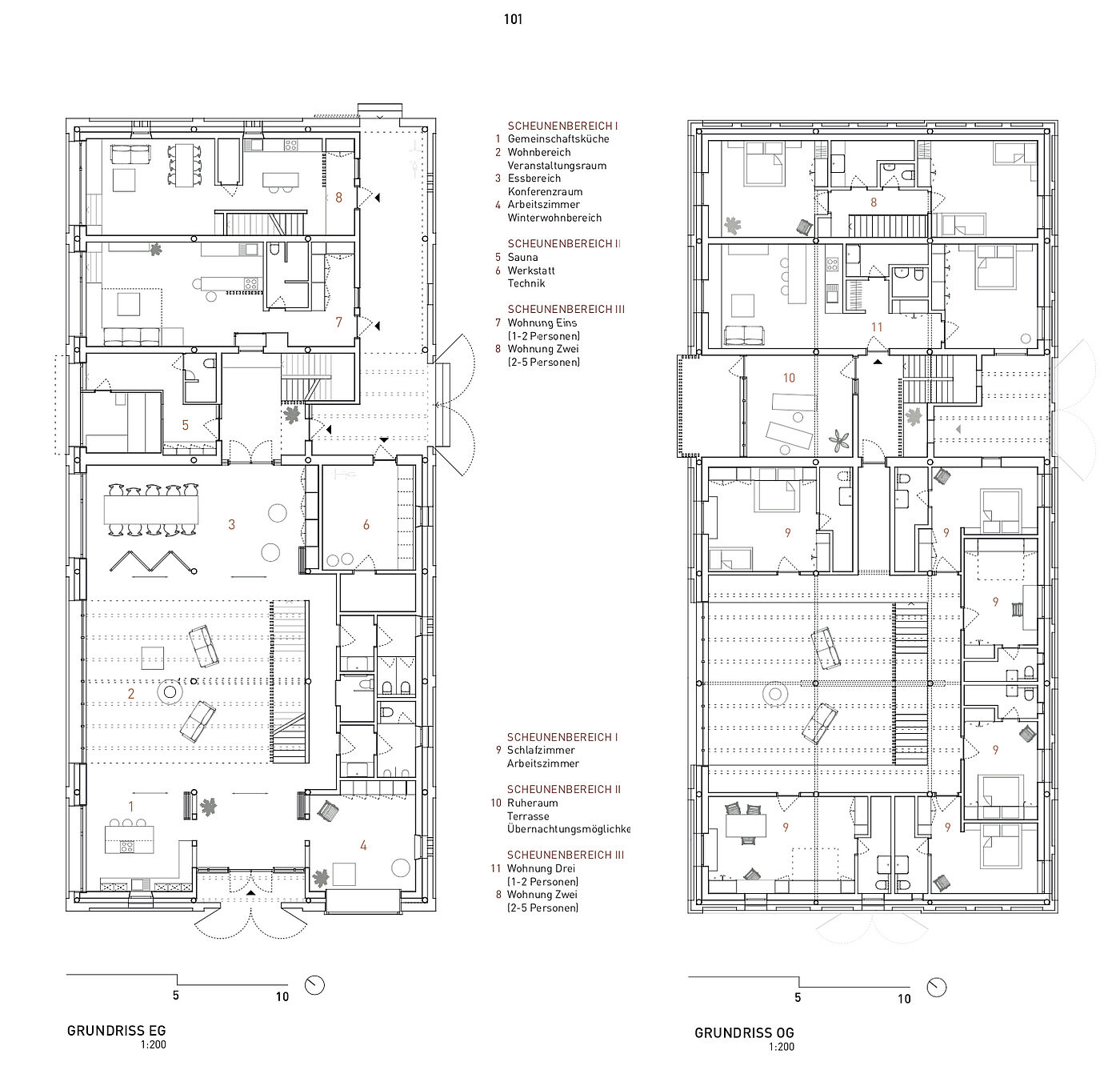
Auf Grundlage der Standort- und Gebäudeanalyse, Einwohnergesprächen sowie der Auseinandersetzung mit verschiedenen Referenzprojekten im ländlichen Raum, wird ein auf den Ort zugeschnittenes, neues Nutzungskonzept entwickelt: Eine Mischung aus Arbeits- und Wohnräumen sowie eine gemeinschaftlich genutzte Küche, Werkstatt und Sauna ermöglichen neue Lebens- und Arbeitskonzepte vor Ort. Es entsteht ein neuer Begegnungsort, der sowohl zum Dorftreffpunkt der Einwohner wird als auch die umliegenden Ferienwohnungen durch wertvolle Nutzungen ergänzt. Eine flexible Raumgestaltung ermöglicht es, dass das Scheunengebäude auf verschiedene Nutzungsintensitäten- und anforderungen reagieren kann.
Das Erscheinungsbild des Scheunengebäudes bleibt durch ein „Haus-im-Haus“-Prinzip weitergehend erhalten und prägt so weiterhin maßgeblich das Planungsgebiet. Die Gestaltung des eingestellten Baukörpers hebt sich klar von dem Bestand ab und macht so Alt und Neu ablesbar. Der Scheunenraum wird durch Einschnitte, Verflechtungen zwischen den Nutzungseinheiten und verschiedene Blickachsen erlebbar gemacht.
Somit bietet die Umnutzung der Scheune Streu das Potential die Attraktivität des Ortes – sowohl für die Dorfbewohner als auch für Gäste – zu steigern und stellt ein mögliches, zukunftsfähiges Konzept dar.








