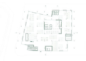
Ziel des Konzeptes ist es, die Ressource Supermarkt nutzbar zu machen. Dabei soll der Raum und die Ressource bewahrt und gleichzeitig die Lebensqualität gesteigert werden. Unter dem Gesichtspunkt der wachsenden Bevölkerung in Ballungszentren geht es zudem auch um die nachhaltige Nachverdichtung sowie Maximierung der Effizienz des Bestandes.
Verschiedenste Nutzungen sollen dem Ort eine neue Bedeutung geben. Urbaner Lebensraum soll vitalisiert werden und dabei in einen Ort des Lebens und der Kultur verwandelt werden. Das Hospiz soll in meinem Entwurf eine programmatische Schnittstelle diverser Gruppen darstellen. Dabei gilt es, Anreize zu schaffen, einen inklusiven Ort der
Begegnung, des Austauschs und der Fürsorge zu kreieren. Nicht nur für die Betroffenen und deren Familien, sondern auch für die Gemeinschaft insgesamt.
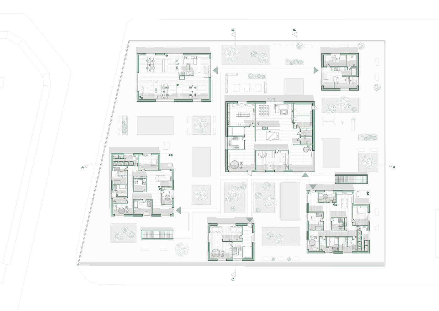
Das Hospiz als integrativer Sterbeort sowie Schnittstelle diverser Gruppen und Individuen ist eines der Hauptziele. Die Enttabuisierung des Sterbens steht hierbei im Vordergrund. Dem Thema Tod eine Plattform geben und somit Transparenz schaffen. Die einzigartige Mischung aus geschichtlichem Hintergrund und der Aktualität in Berlin soll als Plattform genutzt werden, um ein Zeichen der Transformation und Innovation zu setzen.
Super Resources | Plateau

Projektinfos
Jahr: 2024
Studiengang:
Architektur
Betreuung:
Hülseweg, Daniel, ProfessurvertreterTakasaki-Lauw, Simon, Prof. Dipl.-Ing., MArch.
Teilnehmer*innen:
Laura Kreis
Projektart:
AbschlussarbeitEntwurf
Zurück zur Projektübersicht




















