Mitten in der Lübecker Altstadt, am Schrangen, wird das ehemalige Karstadtgebäude A in ein hybrides Stadtquartier transformiert. Statt Einzelhandel auf mehreren Etagen entsteht ein offenes Haus für die Stadtgesellschaft – mit Raum zum Wohnen, Arbeiten, Lernen, Versorgen, Entspannen und Begegnen. Die Mischnutzung folgt dem Leitbild der 15-Minuten-Stadt und bringt das Leben wieder in fußläufige Nähe.
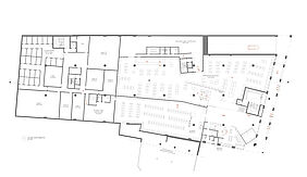
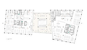
Auf sieben Geschossen bietet das neue Vitalquartier eine differenzierte Nutzung: Im Erdgeschoss sorgen kleinteiliger Einzelhandel, Sportangebote und Eventflächen für Öffentlichkeit und Frequenz. Die darüberliegenden Etagen kombinieren eine großzügige Mensa mit Co-Working-Bereichen, in denen konzentriertes Arbeiten und kreativer Austausch ebenso möglich sind wie Veranstaltungen oder Workshops.
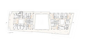
Die oberen Geschosse sind dem Wohnen gewidmet – in Form von Clusterwohnungen, die individuelle Rückzugsräume mit gemeinschaftlich genutzten Bereichen verbinden. Unterschiedliche Wohnungstypen von Mikro bis Familie adressieren verschiedene Lebensentwürfe und Altersgruppen. Aufenthaltsbereiche, Lichthöfe und grüne Terrassen fördern Austausch und Nachbarschaft. Ein Dachgarten mit Urban-Gardening-Flächen schafft eine grüne Oase über den Dächern der Stadt.
Das Gebäude öffnet sich durch neue Zugänge, lichtdurchflutete Innenhöfe und geschwungene Außenräume zur Stadt. Dynamische Formen, begrünte Flächen und ein zentraler Baum als identitätsstiftendes Element auf der Plaza schaffen einen Ort der Bewegung, der Begegnung und des Verweilens. So wird das Vitalquartier zu einem lebendigen Treffpunkt für Lübeckerinnen, Touristinnen und Zugezogene – ein Ort, der die Zukunft der Innenstadt neu denkt und aktiv gestaltet.
















