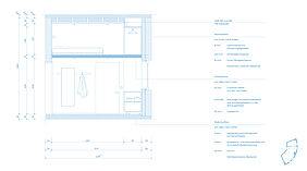
Das daraus entstandene Konzept sieht eine Mischnutzung des Turms vor, die den Turmschaft in ein Azubi-Wohnheim und den Turmkopf in einen öffentlich zugänglichen, gastronomischen Ort transformiert.Die Idee, den Wasserturm als Wohnraum für Auszubildende zu nutzen, basiert auf mehreren Faktoren: dem unmittelbaren räumlichen und historischen Bezug zu den benachbarten Beruflichen Schulen, dem wachsenden Bedarf an bezahlbaren Wohnraum für junge Menschen in der Ausbildung, sowie der strukturellen Eignung des Bestands für die Schaffung kleinerer Wohneinheiten, die sich in ihrer Gestaltung an der bestehenden Architektur orientieren.Durch die Umnutzung des Wasserbehälters zum Gastraum des Restaurant entsteht ein besonderer Ort, der weitestgehend im Originalzustand erhalten werden kann. Die besonderen räumlichen Qualitäten schaffen ein einzigartiges Ambiente, das dem Ort eine besondere Identität verleiht.Der Turmkopf mit Aussichtsplattform blieb der Öffentlichkeit lange Zeit unzugänglich. Mit der geplanten Einrichtung eines Cafés auf dem Dach kann dieser endlich genutzt werden. Gleichzeitig erfüllt sich damit der langjährige Wunsch der Bevölkerung nach einem öffentlich zugänglichen Aussichtscafé als besonderer Ort der Begegnung.
Wasserturm Groß-Gerau

Projektinfos
Jahr: 2025
Studiengang:
Innenarchitektur
Betreuung:
Hantke, Oliver, Prof.Hülseweg, Daniel, Professurvertreter
Teilnehmer*innen:
Felicitas Klemm
Projektart:
AbschlussarbeitEntwurf
Zurück zur Projektübersicht






























