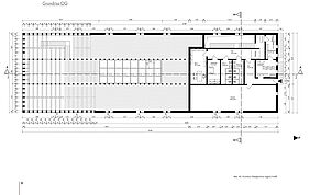
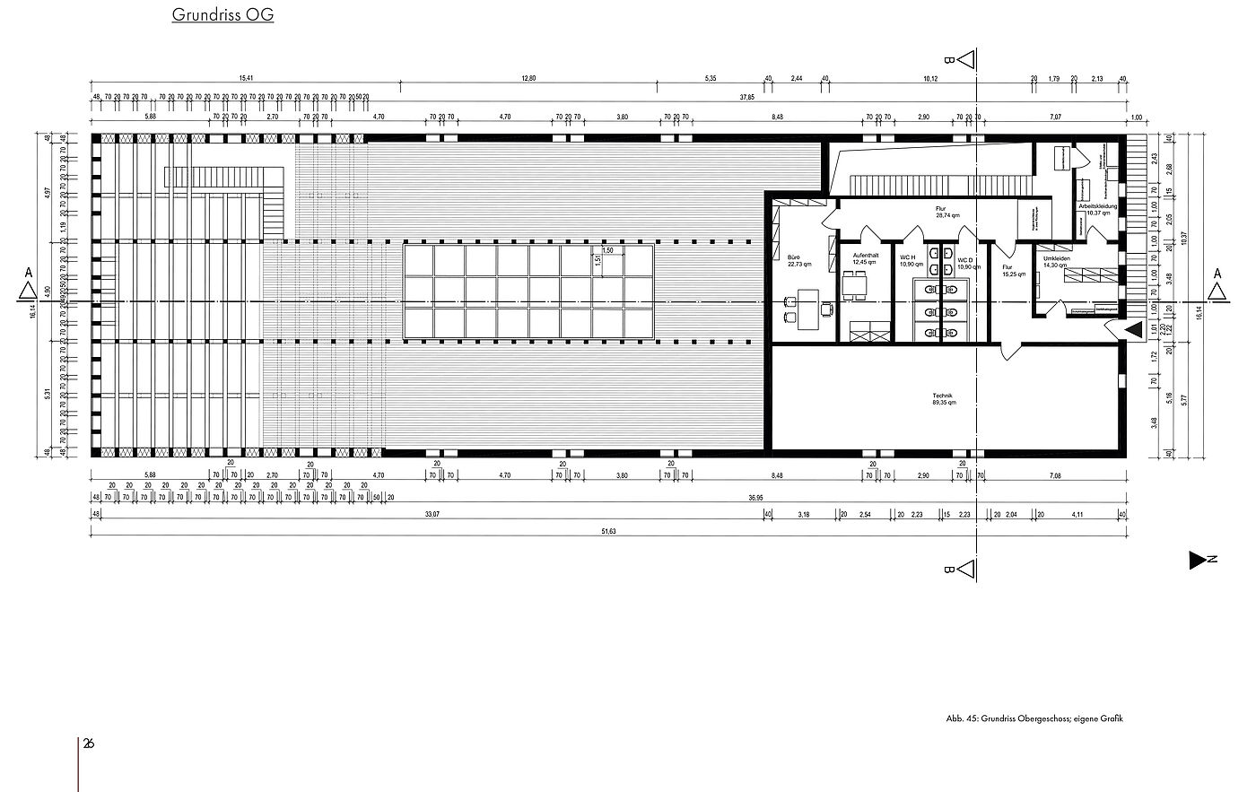
Wiebke Untiedt setzt sich in ihrer Arbeit – weit über einen architektonischen Diskurs hinaus – mit der Problematik der Massentierhaltung und ökologischen Aspekten, Tierschutz, Ernährungsverhalten und Trends, alternativer Vermarktungsmöglichkeiten und allgemein gültiger gesetzlicher Rahmenbedingungen auseinander. Eine kritische und ehrliche Auseinandersetzung mit der Frage zur Zukunft des Schlachterei- und Fleischereiwesens wird u.a. sehr reflektiert vor dem Hintergrund geführt, dass die Arbeit die Zukunft des Familienbetriebes Untiedt betrifft. Der Anspruch, dass das Tierwohl an erster Stelle steht und die vollständige, transparente Verwertung eines Tieres auf nachhaltige Weise geschehen muss, war ein hochgestecktes Ziel der Arbeit, das auf vielen Ebenen in räumlich-funktionaler ober auch konstruktiver und energetischer Hinsicht beleuchtet wird.
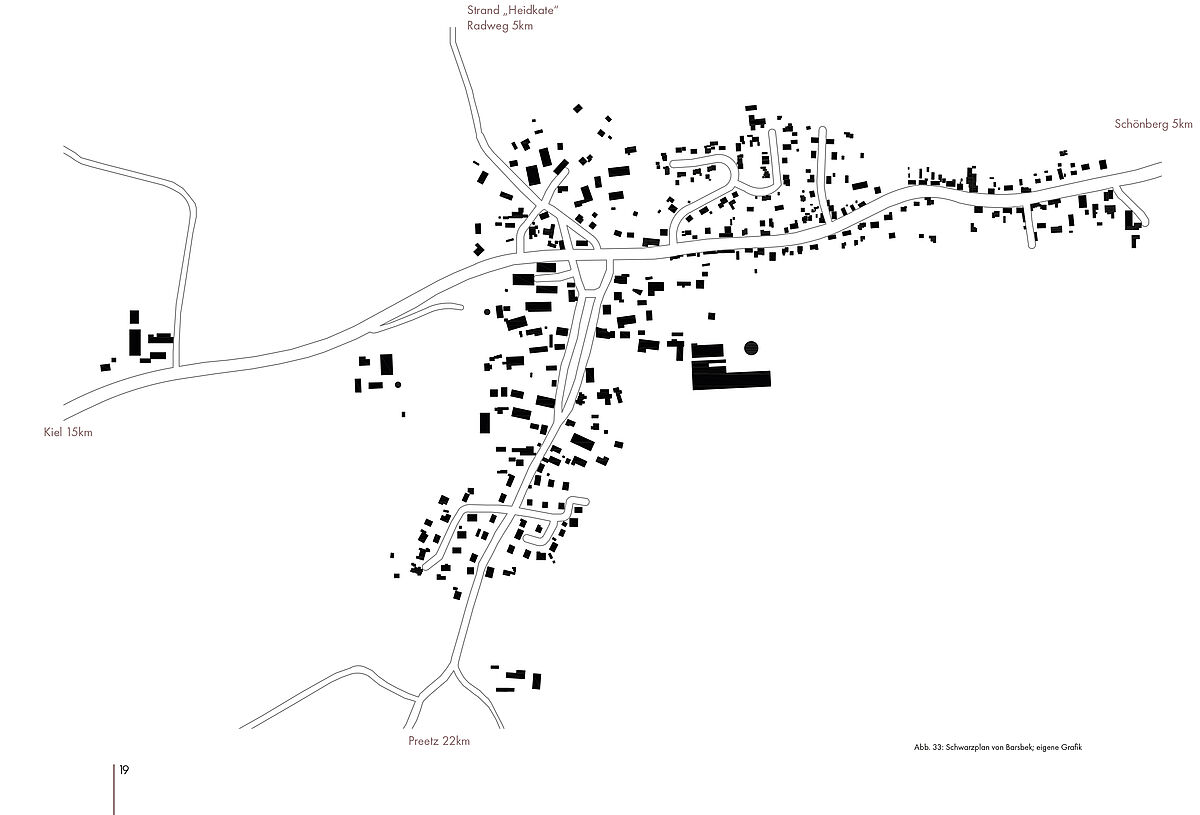
Frau Untiedt hat für ihre Arbeit wertvolle Erkenntnisse über die Literaturrecherche und Analyse von Referenzprojekten gewonnen, in der der Anspruch einer nachhaltigen, transparenten Tierverwertung mit einem hohen architektonischen Anspruch umgesetzt werden konnte. Gleichsam wurden vielseitige und innovative energetische Konzepte ausgewertet und auf ihre Angemessenheit untersucht. Eine weitere Anforderung der Arbeit bestand darin, einen „transparenten“ Schlachtereibetrieb in den Kontext des bestehenden und historisch gewachsenen Hofes Untiedt und eine ländlich geprägte Siedlung städtebaulich zu integrieren. Eine Untersuchung zu traditionellen Bauweisen in Anknüpfung an die bestehenden Gebäude des Hofes hat Frau Untiedt im Rahmen der Arbeit ebenfalls geführt.
Die besondere Qualität der Arbeit liegt neben ihrer aktuellen Relevanz u.a. zu prekären Arbeitsbedingungen (Corona, Tönnies), klimafreundlicher Fleischproduktion und Tierwohl sowie gebäudeenergetischen Aspekten in der Beleuchtung der Frage, wie zahlreiche bestehende Traditionsfleischereibetriebe im ländlichen Raum in Zukunft gestaltet sein können, um gleichzeitig wettbewerbsfähig, nachhaltig und tierfreundlich zu arbeiten. Gleichzeitig konnte der inhaltliche Anspruch in eine zeitgenössische Architektur von hoher Qualität übersetzt werden, die als beispielhaft angesehen werden kann.









