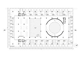
Aufgrund der Lage des neuen Wohnquartiers im Zentrum Hamburgs, ist im Erdgeschoss eine öffentliche Markthalle geplant, welche damit zum Anlaufpunkt für Stadtbewohner und Besucher wird.
Um die Wirtschaftlichkeit des Konzeptes nochmals zu erhöhen und gleichzeitig fehlende kostengünstige temporäre Unterkünfte in der Umgebung auszugleichen, werden Teile der ersten beiden Obergeschosse als Hostel genutzt.
Um das Gebäude zu einem attraktiven Aufenthaltsort umzufunktionieren wird im Inneren ein Lichthof erschaffen, welcher Raum für gemeinschaftliche Nutzung schafft. Die verschiedenen Wohnungsgrundrisse sind um dieses zentrale Atrium angeordnet.
Das Atrium als Ort der Kommunikation erinnert durch seine Materialien an die urspüngliche Funktion des Gebäudes.
Gleichzeitig bilden die Wohnungen einen Kontrast und schaffen Behaglichkeit und Wohnlichkeit durch warme Materialien.
Es steht Funktionalität und Flexibilität im Vordergrund, weswegen nur die Funktionsbereiche wie Badezimmer und Küche definiert sind und sonstige Räumen den Bewohnern Nutzungsfreiraum bieten. Neben Mikroapartments und Nukleuswohnungen mit Schaltzimmern für mehr Flexibilität werden Gartenwohnungen mit privatem Grünbereich angeboten.
Insgesamt 84 Wohnungen mit 21-165m² bieten Lebensraum für verschiedene Bedürfnisse und Lebensumstände und sind Grundlage für ein vielfältiges Miteinander. Abgerundet wird das Wohnkonzept durch den Dachgarten, welcher einen Beitrag zur Begrünung der Stadt leistet.


















